Wilgenlaan 6, 1161 JN Zwanenburg

Te koop
Leuke tussenwoning met tuin  Centrale ligging en kindvriendelijke wijk  Naar eigen smaak te moderniseren 
€399.000 k.k.

Omschrijving

Leuke tussenwoning met tuin
Centrale ligging en kindvriendelijke wijk
Naar eigen smaak te moderniseren

Introductie

Deze tussenwoning wacht op een leuk gezin. De woning dient gemoderniseerd te worden en biedt daardoor de perfecte kans om naar eigen smaak te verbouwen. De woning is volgens de Schipholnormen geïsoleerd.

In de directe omgeving bevinden zich het sportcomplex, park Zwanenburg, een basisschool en het winkelcentrum waar u terecht kunt voor uw dagelijkse boodschappen. De bereikbaarheid van Zwanenburg is goed door de komst van het NS-station, met ieder kwartier een trein naar Amsterdam en Haarlem.

Kortom een fijne woning voor het hele gezin. Gaan jullie de uitdaging aan?

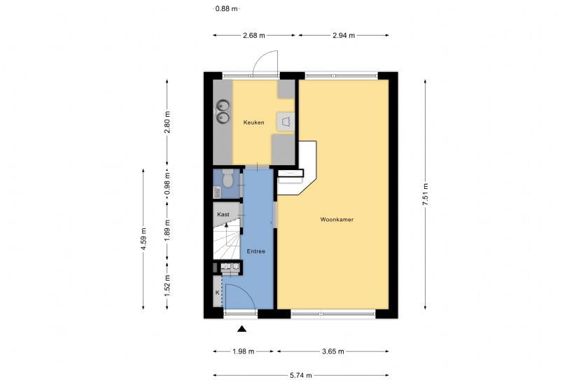
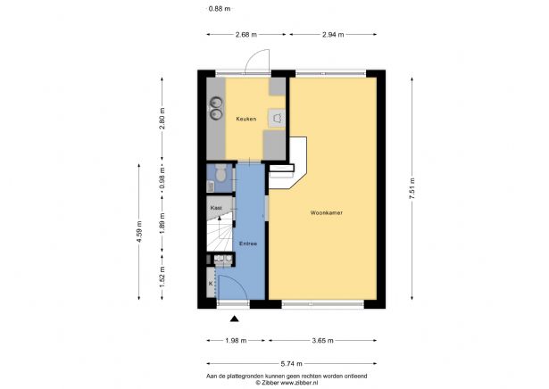
Begane grond

Je komt de woning binnen via de entree, waar je de meterkast, toiletruimte, trapkast en de trap naar de eerste verdieping vindt.
De lichte woonkamer kijkt uit op de onderhoudsvriendelijke tuin, die is voorzien van een berging. De keuken, gelegen aan de achterzijde, is eenvoudig ingericht en biedt volop mogelijkheden om naar eigen wens aan te passen.

1e Verdieping

Via de overloop bereik je de 3 slaapkamers en de eenvoudige badkamer, voorzien van een douche en wastafel.

Bijzonderheden

  • Leuke tussenwoning met tuin;
  • Centrale en rustige ligging;
  • Naar eigen smaak te moderniseren;
  • Kindvriendelijke wijk;
  • Achtertuin met achterom en berging;
  • In directe nabijheid van centrum;
  • Sportfaciliteiten en school op loopafstand;
  • Amsterdam en Haarlem snel bereikbaar;
  • Alle genoemde maten zijn circa maten;
  • Aan deze informatie kunnen geen rechten worden ontleend.

Notaris

Projectnotaris.

Aanvullende informatie

Deze woning wordt aangeboden in samenwerking met Huysshop Internetmakelaar.

Overdracht
Koopprijs
€ 399.000
Beschikbaar per
01-11-2025
WOZ
€ 367.000
Woning
Kale woning
Oppervlakte en inhoud
Woonoppervlakte
86 m2
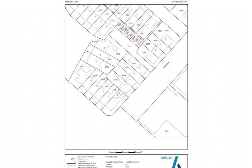
Perceeloppervlakte
145 m2
Inhoud
302 m3
Bouw
Soort woning
Tussenwoning
Bouwjaar
1965
Energielabel
Energielabel
C
Indeling
Aantal kamers
4
Aantal slaapkamers
3
Aantal woonlagen
2
Buitenruimte
Tuin
Aanwezig
Ligging
Noordwest
Beschrijving
Achtertuin, Voortuin
Parkeergelegenheid
Soort parkeren
Openbaar parkeren
Overig
Cijfer vorige bewoner
9

Wilgenlaan 6, 1161 JN Zwanenburg op kaart