Veeweide 41, 6049 LS Herten

Te huur
2^1 kapwoning jaren '30 stijl  Royale tuin en garage  Kindvriendelijke wijk Oolderveste 
€1.495 per maand

Omschrijving

2^1 kapwoning jaren '30 stijl
Royale tuin en garage
Kindvriendelijke wijk Oolderveste

Introductie

Deze jonge 2^1 kapwoning is centraal gelegen en o.a. voorzien van een royale tuin, een moderne keuken met inbouwapparatuur, een ruime badkamer, 3 slaapkamers en een vaste trap naar de zolderverdieping.

Oolderveste is meer dan wonen alleen. Je hebt cultuur en natuur binnen handbereik en stedelijke voorzieningen en recreatiemogelijkheden op steenworp afstand. Voor wie houdt van winkelen, theater of film, van watersport, rust en stilte van de natuur. De wijk geeft je ruimte voor alles wat het leven te bieden heeft. Ruimte om te wonen, ruimte voor recreatie en ruimte voor rust en stilte. Centraal gelegen in het kloppend hart van Midden-Limburg verenigt Oolderveste kwaliteit en sfeer uit het verleden met woon- en leefcomfort van vandaag en morgen.

De woning is duurzaam gebouwd, energiezuinig en voldoet aan de laatste eisen op het gebied van isolatie, wat resulteert in lage energiekosten.

De verbindingswegen A2, A73 en de Duitse grens zijn goed bereikbaar, waardoor de woning ideaal ligt voor jouw woon- en werkverkeer.

Kortom, een heerlijke woning in een groene en kindvriendelijke omgeving!

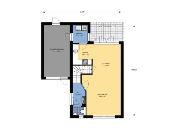
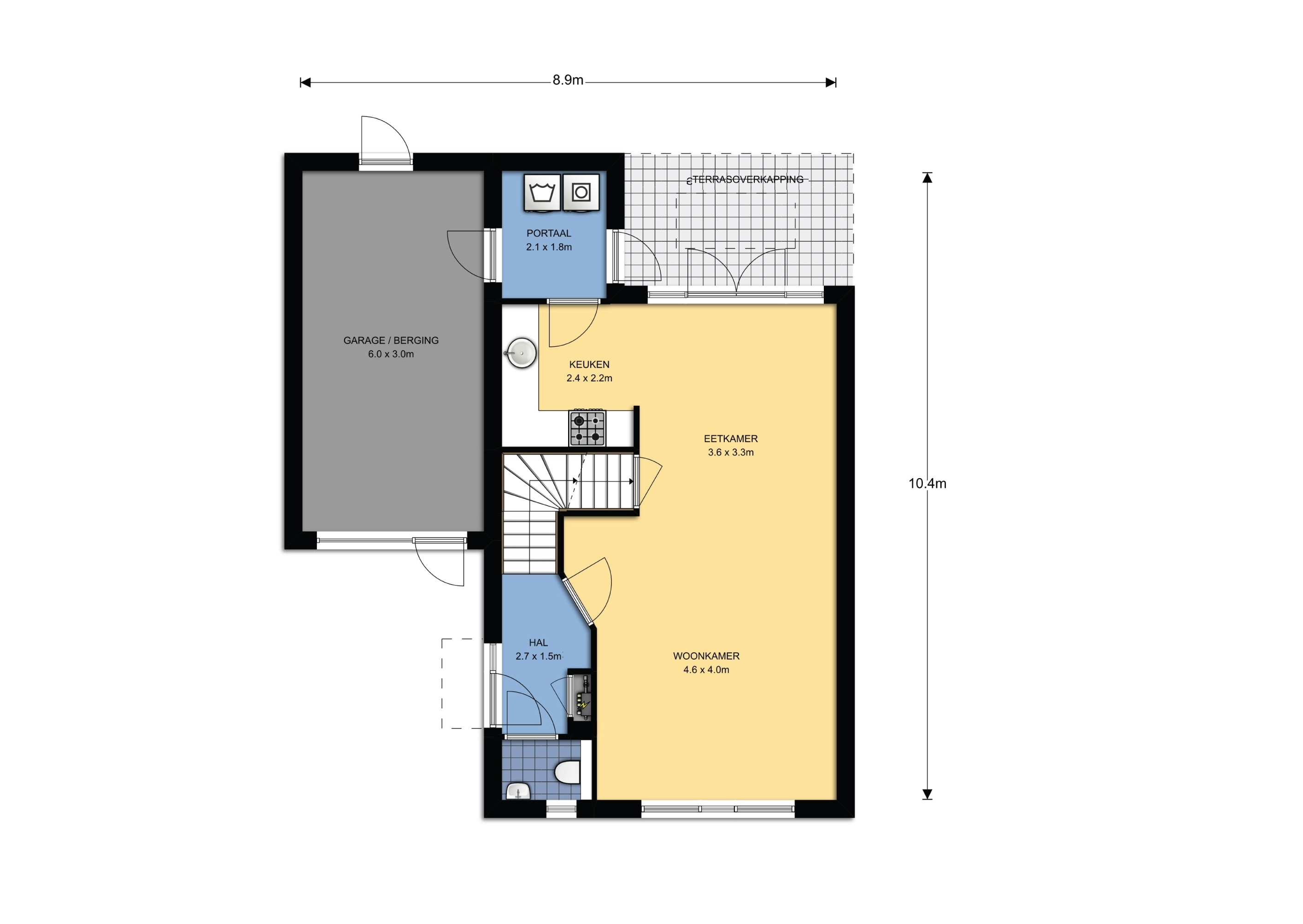
Begane grond

Vanuit de hal met toilet en trapopgang naar de 1e verdieping bereik je de royale woonkamer met open moderne keuken. De keuken is voorzien van een gaskookplaat, afzuigkap, combi-oven, koelkast en vaatwasser. Je beschikt over een ruime tuin met gazon en terras waar de kinderen heerlijk kunnen spelen. Vanuit de tuin heb je toegang tot de ruime garage met oprit.

1e Verdieping

Via de overloop bereik je 3 slaapkamers en de modern afgewerkte badkamer met ligbad, aparte douche, wastafel en 2e toilet.

2e Verdieping

Deze verdieping is met een vaste trap te bereiken en leent zich bij uitstek als extra studie-, werk- of speelkamer. Hier tref je tevens de aansluitingen voor het witgoed aan.

Bijzonderheden

  • 2^1 kapwoning jaren '30 stijl;
  • Royale tuin en garage;
  • Kindvriendelijke wijk Oolderveste;
  • Moderne keuken, toilet en badkamer;
  • Energiezuinig;
  • 3 ruime slaapkamers;
  • Multifunctionele ruimte op de 2e etage;
  • Aan deze informatie kunnen geen rechten worden ontleend;
  • Alle genoemde maten zijn circa maten.

Voorbehoud

Gunning door verhuurder.

Inkomensnorm

Als je in dit huis wilt wonen moet je bruto (gezamenlijk) maandinkomen minimaal € 5.980,00 zijn, waarbij een eventueel 2e inkomen van je levenspartner voor de helft wordt meegerekend.

Waarborgsom

Bij de start van je huurovereenkomst betaal je een waarborgsom van minimaal één maandhuur. In sommige gevallen kan een hogere waarborgsom gevraagd worden.

Langdurige verhuur

Wij richten ons uitsluitend op langdurige verhuur. Dit betekent dat een eventuele huurovereenkomst altijd wordt afgesloten voor onbepaalde tijd met een minimale periode van drie jaar.

Huurvoorwaarden en benodigde inschrijfdocumentatie

Onze huurvoorwaarden en de benodigde inschrijfdocumenten kunt u bekijken via www.stienstra.nl/huurvoorwaarden/

Overdracht
Huurprijs
€ 1.495
Geliberaliseerd
Ja
Beschikbaar per
01-02-2026
WOZ
€ 404.000
Woning
Kale woning
Oppervlakte en inhoud
Woonoppervlakte
120 m2
Inhoud
278 m3
Bouw
Soort woning
2-onder-1-kapwoning
Bouwjaar
2011
Energielabel
Energielabel
A
Indeling
Aantal kamers
4
Aantal slaapkamers
3
Aantal woonlagen
3
Buitenruimte
Tuin
Aanwezig
Ligging
Zuid
Beschrijving
Achtertuin, Voortuin
Parkeergelegenheid
Soort parkeren
Op eigen terrein
Overig
Cijfer vorige bewoner
10

Veeweide 41, 6049 LS Herten op kaart