Vaartbossen 14, 4816 JJ Breda

Te koop
Opknapper!  Ruime tussenwoning met 3 slaapkamers  Achtertuin met stenen berging en achterom 
€309.000 k.k.

Omschrijving

Opknapper!
Ruime tussenwoning met 3 slaapkamers
Achtertuin met stenen berging en achterom

Introductie

In de groene en rustige wijk Doornbos, ten noordoosten van Breda, vind je deze ruime eengezinswoning. Op korte afstand liggen het station van Breda en het stadcentrum, met alle voorzieningen bij de hand. Zo kun je voor je dagelijkse boodschap terecht bij de winkels aan de Baliëndijk, of bij het iets verder gelegen winkelcentrum Hoge Vucht. In de wijk vind je tevens een bassischool en een park (Liniepark). Aansluiting op uitvalswegen zoals de rijksweg bevinden zich op korte afstand van de woning.

Deze ruime tussenwoning met stenen berging is gelegen in een rustige en groene woonomgeving. Vanwege de grootte en de ligging is de woning ideaal voor gezinnen. De tuin met berging bevat een achterom en ligt op het oosten. Aan de voorzijde van de woning is voldoende parkeergelegenheid.

Begane grond

Je betreedt de woning via de entree/hal met trapopgang, kast en toiletruimte. Als je rechtdoor loopt, kom je in de dichte keuken met eenvoudig keukenblok terecht. Aan de linkerzijde tref je de ruime doorzonwoonkamer over de gehele lengte van de woning aan. Zowel de woonkamer (dubbele tuindeur) als de keuken verschaffen je toegang tot de achtertuin.

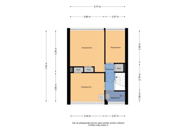
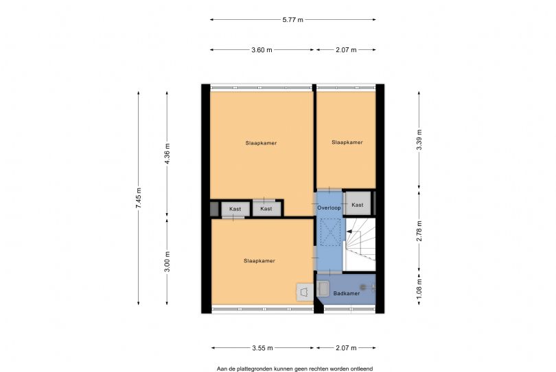
1e Verdieping

Via de overloop met bergkast bereik je de eenvoudige badkamer en 3 slaapkamers waarvan er 2 voorzien zijn van een vaste kast. De badkamer is uitgerust met een douche en een wastafel.

2e Verdieping

Je bereikt de bovenste verdieping middels vlizotrap. De zolderruimte is voorzien van een klein dakraam.

Bijzonderheden

  • Opknapper!
  • Ruime tussenwoning met 3 slaapkamers;
  • Achtertuin met stenen berging en achterom;
  • Rustige woonlocatie;
  • Nabij diverse voorzieningen;
  • Gedeeltelijk dubbele beglazing;
  • Geen CV, warm water via boiler (eigendom) in keuken;
  • Voldoende gratis parkeergelegenheid in de straat;
  • Woning ligt thans op een deelperceel, uitsplitsing is aangevraagd op kosten van de verkoper;
  • Alle genoemde maten zijn circa maten;
  • Aan deze informatie kunnen geen rechten worden ontleend.

Notaris

Projectnotaris.

Aanvullende informatie

Deze woning wordt aangeboden in samenwerking met Huysshop Internetmakelaar.

Overdracht
Koopprijs
€ 309.000
Beschikbaar per
01-11-2025
WOZ
€ 317.000
Woning
Kale woning
Oppervlakte en inhoud
Woonoppervlakte
90 m2
Perceeloppervlakte
320 m2
Inhoud
369 m3
Bouw
Soort woning
Tussenwoning
Bouwjaar
1960
Energielabel
Energielabel
F
Indeling
Aantal kamers
4
Aantal slaapkamers
3
Aantal woonlagen
3
Buitenruimte
Tuin
Aanwezig
Ligging
Oost
Beschrijving
Achtertuin, Voortuin
Parkeergelegenheid
Soort parkeren
Openbaar parkeren

Vaartbossen 14, 4816 JJ Breda op kaart