Slotlaan 7, 3523 HA Utrecht

Te koop
Leuke (starters)woning  Wijk Tolsteeg en Rotsoord  Zonnige achtertuin op het zuiden 
€495.000 k.k.

Omschrijving

Leuke (starters)woning
Wijk Tolsteeg en Rotsoord
Zonnige achtertuin op het zuiden

Introductie

In de karaktervolle wijk Tolsteeg en Rotsoord, ooit een middeleeuwse voorstad van Utrecht, staat deze tussenwoning met volop potentie.

De woning biedt alle ruimte voor een eigentijdse metamorfose en beschikt over een lichte, tuingerichte woonkamer, drie slaapkamers, een zolderverdieping en een stenen berging in de voortuin. De achtertuin én het balkon liggen op het zonnige zuiden, ideaal om de hele dag van de zon te genieten.

De ligging is groen en rustig, aan een autoluwe steeg, maar toch omringd door het levendige stadsleven. Het Beatrixpark ligt om de hoek voor een wandeling, sport of ontspanning. Basisschool, wellness, healthclub en gezondheidscentrum bevinden zich op loopafstand. Voor dagelijkse boodschappen en winkels is het Smaragdplein dichtbij, en binnen enkele fietsminuten sta je in het bruisende centrum van Utrecht en op het Domplein.

Kortom: een woning met mogelijkheden op een toplocatie in Utrecht!

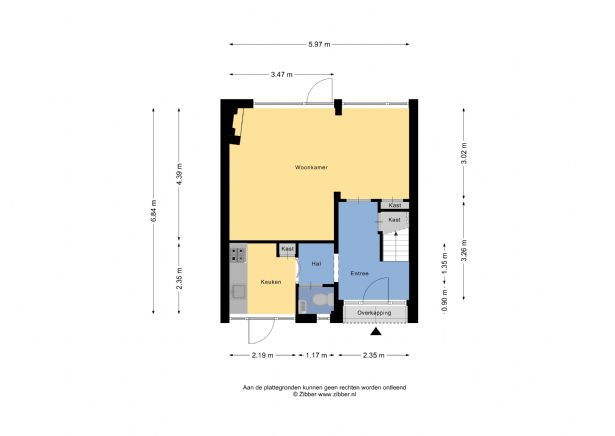
Begane grond

Via de royale voortuin met stenen berging bereik je de entree, hal met meterkast/trapkast, toiletruimte en de toegang tot de tuingerichte L-vormige woonkamer met toegang tot de leuke achtertuin op het zonnige zuiden. De gesloten keuken met een keukenblok ligt aan de voorzijde van de woning.

1e Verdieping

Via de overloop zijn 3 slaapkamers waarvan 2 met een vaste kast en 1 slaapkamer met toegang tot het balkon bereikbaar. De eenvoudige badkamer is voorzien van een douche en wastafel.

2e Verdieping

De bergzolder ligt over de gehele breedte van de woning en is te bereiken met een houten trap.

Bijzonderheden

  • Leuke (starters)woning;
  • Wijk Tolsteeg en Rotsoord;
  • Zonnige achtertuin op het zuiden;
  • 3 slaapkamers;
  • Voorzien van kunststof kozijnen;
  • Geen verwarming aanwezig;
  • Berging aan de voorzijde;
  • Groene en rustige woonomgeving;
  • Gelegen op loopafstand van winkelcentrum Smaragdplein;
  • Nabij uitvalswegen, openbaar vervoer en scholen;
  • Meetrapport aanwezig;
  • Alle genoemde maten zijn circa maten;
  • Aan deze informatie kunnen geen rechten worden ontleend.

Notaris

Projectnotaris.

Aanvullende informatie

Deze woning wordt aangeboden in samenwerking met Huysshop Internetmakelaar.

Overdracht
Koopprijs
€ 495.000
Beschikbaar per
02-10-2025
WOZ
€ 460.000
Woning
Kale woning
Oppervlakte en inhoud
Woonoppervlakte
80 m2
Perceeloppervlakte
137 m2
Inhoud
324 m3
Bouw
Soort woning
Tussenwoning
Bouwjaar
1955
Energielabel
Energielabel
F
Indeling
Aantal kamers
4
Aantal slaapkamers
3
Aantal woonlagen
3
Buitenruimte
Gebouwgebonden
3 m2
Tuin
Aanwezig
Ligging
Zuid
Beschrijving
Achtertuin, Voortuin
Parkeergelegenheid
Soort parkeren
Betaald parkeren

Slotlaan 7, 3523 HA Utrecht op kaart