San Cristobaldreef 34, 3563 SZ Utrecht

Te huur
Ruime eengezinswoning met tuin  Optimaal geïsoleerd  Overvecht 
€1.525 per maand

Omschrijving

Ruime eengezinswoning met tuin
Optimaal geïsoleerd
Overvecht

Introductie

Hier woon je heerlijk in een ruime en moderne tussenwoning waar comfort en gemak samenkomen! Deze fijne woning beschikt over 3 volwaardige slaapkamers en een tuin op het noordoosten met berging – perfect om 's ochtends van de zon te genieten en je fiets of spullen netjes op te bergen.

Je kookt met plezier in de moderne keuken, die is uitgerust met diverse inbouwapparatuur en van alle gemakken is voorzien. De woning ligt in een verkeersluwe en daarmee zeer kindvriendelijke straat, waar je rustig woont en waar bovendien ruim voldoende parkeergelegenheid direct voor de deur aanwezig is.

Je woont in de wijk Overvecht, op een fantastische locatie voor natuurliefhebbers. Je loopt zó natuurgebied De Klop in en ook het Noorderpark met het Gagelbos en de rivier de Vecht liggen om de hoek. Daarnaast geniet je van diverse parken in de buurt, zoals De Watertoren, De Gagel en Vechtzoom. Zin in een dagje strand of zwemmen? De Maarsseveense Plassen bereik je al binnen 10 minuten met de auto.

Alle voorzieningen heb je binnen handbereik: het winkelcentrum Overvecht, het NS-station en de uitvalswegen liggen vlakbij. En wil je de stad in? Dan ben je zo in de binnenstad van Utrecht!

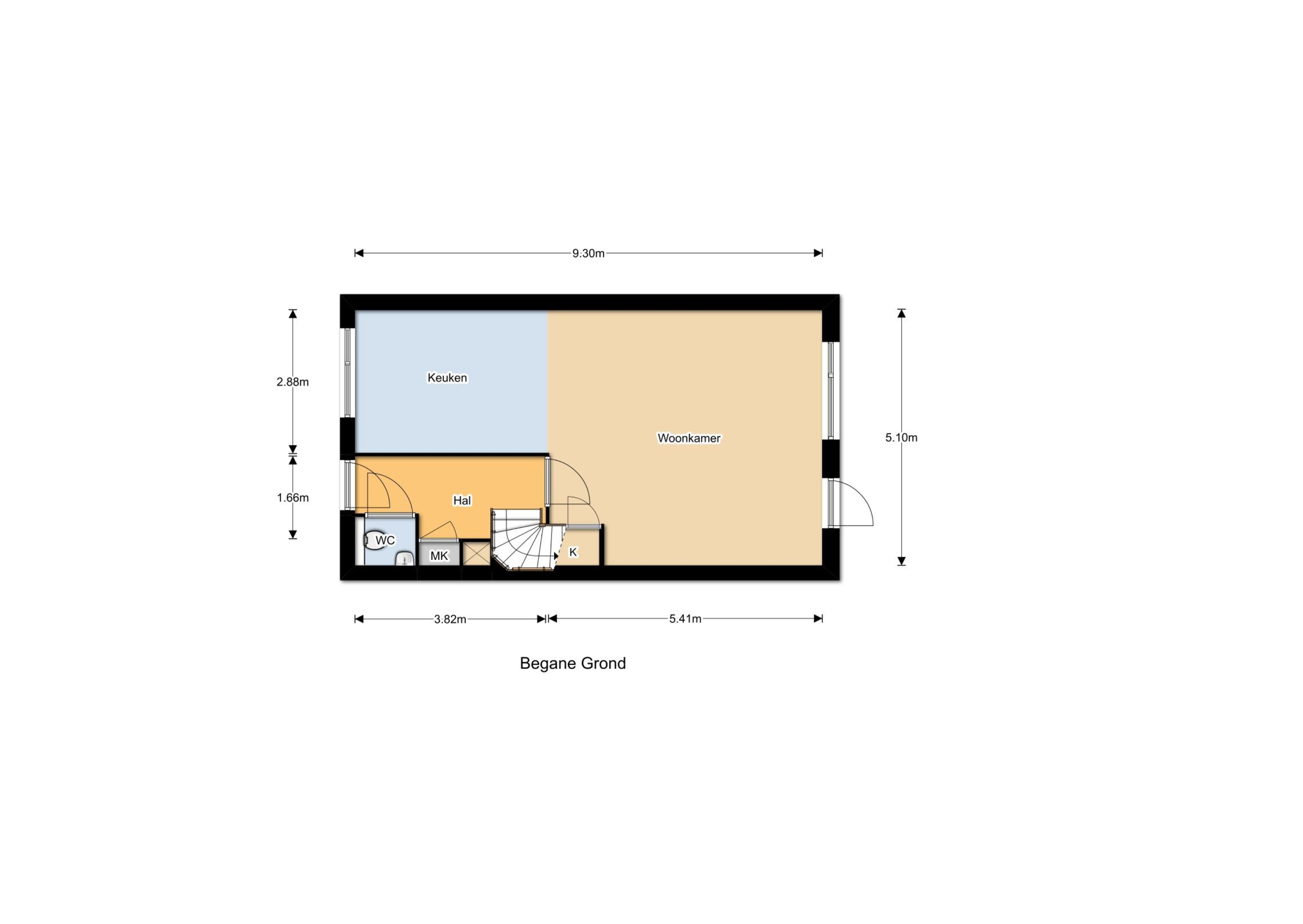
Begane grond

Je komt binnen via de voortuin en entree, waar je direct de toiletruimte en meterkast vindt. Vanuit hier loop je door naar de tuingerichte woonkamer, een fijne en lichte ruimte met zicht op de tuin.

Aan de voorzijde van de woning bevindt zich de open keuken, die is voorzien van diverse inbouwapparatuur en van alle gemakken is voorzien. De tuin op het noordoosten is een heerlijke plek om te ontspannen en beschikt over een berging én een praktische achterom.

1e Verdieping

Via de overloop bereik je 3 slaapkamers en de moderne badkamer met douche, wastafel en het 2e toilet.

2e Verdieping

Op de 2e verdieping bevindt zich een open zolderruimte en de aansluitingen voor de wasmachine.

Bijzonderheden

  • Ruime eengezinswoning met tuin;
  • Optimaal geïsoleerd;
  • Bouwjaar 2012;
  • Centraal gelegen, wijk Overvecht;
  • Keuken voorzien van koelkast, combi magnetron, gaskookplaat en een vaatwasser;
  • Parkeren voor de deur;
  • Alle genoemde maten zijn circa maten;
  • Aan deze informatie kunnen geen rechten worden ontleend.

Voorbehoud

Gunning door verhuurder.

Inkomensnorm

Als je in dit huis wilt wonen moet je bruto (gezamenlijk) maandinkomen minimaal €6.100,00 zijn, waarbij een eventueel 2e inkomen van je levenspartner voor de helft wordt meegerekend.

Waarborgsom

Bij de start van je huurovereenkomst betaal je een waarborgsom van minimaal één maandhuur. In sommige gevallen kan een hogere waarborgsom gevraagd worden.

Langdurige verhuur

Wij richten ons uitsluitend op langdurige verhuur. Dit betekent dat een eventuele huurovereenkomst altijd wordt afgesloten voor onbepaalde tijd met een minimale periode van drie jaar.

Huurvoorwaarden en benodigde inschrijfdocumentatie

Onze huurvoorwaarden en de benodigde inschrijfdocumenten kunt u bekijken via www.stienstra.nl/huurvoorwaarden/

Overdracht
Huurprijs
€ 1.525
Geliberaliseerd
Ja
Beschikbaar per
01-03-2026
WOZ
€ 547.000
Woning
Kale woning
Oppervlakte en inhoud
Woonoppervlakte
115 m2
Perceeloppervlakte
122 m2
Inhoud
400 m3
Bouw
Soort woning
Tussenwoning
Bouwjaar
2012
Energielabel
Energielabel
A
Indeling
Aantal kamers
4
Aantal slaapkamers
3
Aantal woonlagen
3
Buitenruimte
Tuin
Aanwezig
Ligging
Noordoost
Beschrijving
Achtertuin, Voortuin
Parkeergelegenheid
Soort parkeren
Openbaar parkeren

San Cristobaldreef 34, 3563 SZ Utrecht op kaart