Oldenzaalsestraat 139 B, 7514 DR Enschede

Te huur
Moderne stadswoning  Luxe afgewerkt  Centrumlocatie 
€1.425 per maand

Omschrijving

Moderne stadswoning
Luxe afgewerkt
Centrumlocatie

Introductie

Wonen in de wijk 't Zeggelt betekent wonen in luxe, comfort en met veel leefplezier. 't Zeggelt behoort tot de meest geliefde woonwijken van de stad dankzij de ruime huizen en groene straten. Deze prachtige wijk biedt door haar ligging een ideale aansluiting op het gezellige stadsleven van Enschede.

Niet alleen het stadshart ligt in de directe nabijheid, maar ook het nieuwe muziekkwartier en het Rijksmuseum Twenthe.

Heb je kinderen? Ongeacht de leeftijd van je kind is alles in de buurt. In een straal van 400 meter heb je keuze uit 3 basisscholen en de vervolgopleidingen zijn tot en met een Universiteit in Enschede in grote variatie aanwezig.

Het openbaar vervoer is goed geregeld. Op circa 600 meter afstand ligt het centraal station van Enschede met een perfecte aansluiting op zowel de nationale- als internationale verbindingen. Door de ideale ligging van de wijk zijn de uitvalswegen A1 en A35 goed te bereiken.

Deze fantastische stadswoning is luxe afgewerkt, energiezuinig en biedt je veel comfort.

Kortom, heerlijk en luxe wonen in een fantastische wijk met veel voorzieningen in de buurt!

Begane grond

Entree, hal met trapopgang, trapkast, meterkast en toilet met Mosa-tegelwerk. De halfopen keuken in hoekopstelling is luxe afgewerkt met een natuurstenen werkblad, een oven, vaatwasser, koelkast en gaskooktoestel (allen van het merk AEG).

De royale woonkamer met openslaande tuindeuren biedt toegang naar het gezellige terras en de achtertuin op het westen. De tuin biedt veel privacy en is geheel omsloten met een draadhekwerk en heeft een eigen achterom met tuinpoort. De woning heeft een garage inclusief een eigen extra parkeerplaats, welke bereikbaar is via het binnenterrein.

1e Verdieping

Overloop met trapopgang, 3 slaapkamers en een badkamer met 2e toilet, ligbad, verlaagde douchebak met douchescherm en wastafel. De badkamer is afgewerkt met luxe Mosa-tegelwerk.

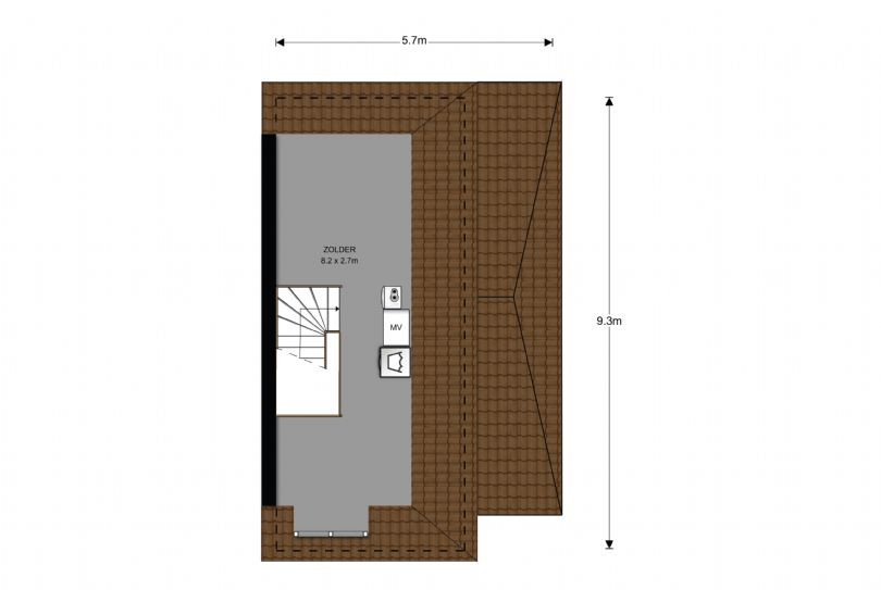
2e Verdieping

Deze verdieping is met een vaste trap bereikbaar en biedt extra mogelijkheden. Tevens zijn hier de aansluitingen voor de wasmachine, wasdroger en cv gerealiseerd.

Bijzonderheden

  • Moderne stadswoning;
  • Hoogwaardig afgewerkt;
  • Centraal gelegen;
  • Moderne keuken en badkamer;
  • Tuin met terras gelegen op het westen;
  • Garage en een extra parkeerplaats;
  • 3 slaapkamers;
  • Alle genoemde maten zijn circa maten;
  • Aan deze informatie kunnen geen rechten worden ontleend.

Voorbehoud

Gunning door verhuurder.

Inkomensnorm

Als je in dit huis wilt wonen moet je bruto (gezamenlijk) maandinkomen minimaal €5.700,00 zijn, waarbij een eventueel 2e inkomen van je levenspartner voor de helft wordt meegerekend.

Waarborgsom

Bij de start van je huurovereenkomst betaal je een waarborgsom van minimaal één maandhuur. In sommige gevallen kan een hogere waarborgsom gevraagd worden.

Langdurige verhuur

Wij richten ons uitsluitend op langdurige verhuur. Dit betekent dat een eventuele huurovereenkomst altijd wordt afgesloten voor onbepaalde tijd met een minimale periode van drie jaar.

Toewijzing

Bij meerdere geschikte kandidaten zal de woning via loting worden toegewezen.

Huurvoorwaarden en benodigde inschrijfdocumentatie

Onze huurvoorwaarden en de benodigde inschrijfdocumenten kunt u bekijken via www.stienstra.nl/huurvoorwaarden/

Overdracht
Huurprijs
€ 1.425
Geliberaliseerd
Ja
Beschikbaar per
01-03-2026
WOZ
€ 335.000
Woning
Kale woning
Oppervlakte en inhoud
Woonoppervlakte
126 m2
Inhoud
325 m3
Bouw
Soort woning
Halfvrijstaande woning
Bouwjaar
2011
Energielabel
Energielabel
A
Indeling
Aantal kamers
4
Aantal slaapkamers
3
Aantal woonlagen
3
Buitenruimte
Tuin
Aanwezig
Ligging
West
Beschrijving
Achtertuin, Voortuin
Parkeergelegenheid
Soort parkeren
Op eigen terrein

Oldenzaalsestraat 139 B, 7514 DR Enschede op kaart