Kennedylaan 28, 4281 KV Andel

Te koop
Ruime hoekwoning  Tuin op het zuidwesten  Mooie groene woonomgeving 
€325.000 k.k.

Omschrijving

Ruime hoekwoning
Tuin op het zuidwesten
Mooie groene woonomgeving

Introductie

Deze ruime hoekwoning ligt op een mooie locatie in Andel, een dorp in het noordoosten van het Land van Altena. Kenmerkend aan deze omgeving zijn de polderlandschappen en mooie kerkdorpen. Het Land van Altena is omringd door de Merwede, de Biesbosch, de Bergsche Maas en de Afgedamde Maas. Het landschap leent zich perfect voor de actieve mens: je kunt hier heerlijk fietsen, wandelen en zwemmen.

Het dorp Andel ligt in het rivierengebied in het Land van Heusden en Altena. Het dorp is bekend vanwege de dam in de Maas en de daar gelegen Andelse Sluis. Het opvallendste gebouw is ongetwijfeld de 14e-eeuwse Romboutstoren met zijn karakteristieke bakstenen spits.

In Andel tref je diverse voorzieningen aan zoals een supermarkt, basisschool, kinderdagverblijf, buitenschoolse opvang en een huisartsenpraktijk.

Deze woning biedt kansen! Dit huis is ideaal geschikt om helemaal naar je eigen wens te moderniseren.

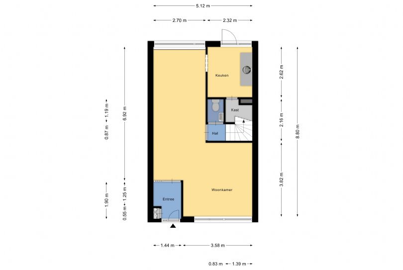
Begane grond

Via de entree/hal met meterkast heb je toegang tot de ruime doorzonwoonkamer met dichte keuken. Vanuit de woonkamer bereik je de trap naar de eerste etage, hier bevindt zich tevens het toilet. Vanuit de keuken, die voorzien is van een eenvoudig keukenblok bereik je de ruime achtertuin. De tuin is gelegen op het zuidwesten.

1e Verdieping

De overloop geeft toegang tot 3 slaapkamers en de ruime volledig betegelde badkamer met douche, wastafel en wasmachineaansluiting.

2e Verdieping

De 2e verdieping is met een vaste trap te bereiken. Hier tref je de voorzolder met cv- ketel en de 4e slaapkamer aan.

Bijzonderheden

  • Ruime hoekwoning;
  • Tuin op het zuidwesten;
  • Mooie, groene woonomgeving;
  • Dit huis is ideaal geschikt om helemaal naar je eigen wens te moderniseren.
  • Voldoende parkeergelegenheid in de straat;
  • Nabij diverse voorzieningen en de supermarkt;
  • Alle genoemde maten zijn circa maten;
  • Aan deze informatie kunnen geen rechten worden ontleend.

Notaris

Voor de akte van levering is een projectnotaris van toepassing.

Aanvullende informatie

Deze woning wordt aangeboden in samenwerking met Huysshop Internetmakelaar.

Overdracht
Koopprijs
€ 325.000
Beschikbaar per
22-01-2026
WOZ
€ 284.000
Woning
Kale woning
Oppervlakte en inhoud
Woonoppervlakte
108 m2
Perceeloppervlakte
198 m2
Inhoud
382 m3
Bouw
Soort woning
Hoekwoning
Bouwjaar
1972
Energielabel
Energielabel
E
Indeling
Aantal kamers
4
Aantal slaapkamers
3
Aantal woonlagen
3
Buitenruimte
Tuin
Aanwezig
Ligging
Zuidwest
Beschrijving
Achtertuin, Voortuin, Zijtuin
Parkeergelegenheid
Soort parkeren
Openbaar parkeren
Overig
Cijfer vorige bewoner
7

Kennedylaan 28, 4281 KV Andel op kaart