Jane Addamslaan 94, 1187 DA Amstelveen

Te huur
5 kamerwoning van 130m2 met ruime achtertuin  Warmtepomp en zonnepanelen  Groene omgeving 
€1.995 per maand

Omschrijving

5 kamerwoning van 130m2 met ruime achtertuin
Warmtepomp en zonnepanelen
Groene omgeving

Introductie

Ontdek deze instapklare tussenwoning met energielabel A+++ aan een brede laan met volop parkeergelegenheid. Hier woon je modern, comfortabel én energiezuinig!

De woning beschikt over een moderne keuken met inbouwapparatuur, een strakke badkamer en een ruime zolderverdieping die perfect is als extra slaapkamer, werkplek of hobbyruimte. Met 8 zonnepanelen profiteer je bovendien van lage energielasten. De verzorgde tuin met berging maakt het geheel compleet.

Gelegen in de geliefde wijk Westwijk, op loopafstand van Winkelcentrum Westwijk, scholen en Sneltram 51 richting Amsterdam. Ook het Amsterdamse Bos ligt om de hoek.

Kortom: duurzaam, ruim en perfect gelegen!

Begane grond

Via de entree kom je in de gang, waar zich de fraaie toiletruimte met zwevend toilet en fonteintje bevindt. De tuingerichte woonkamer heeft een open keuken aan de voorzijde van de woning. Het betreft een moderne keuken, voorzien van een inductiekookplaat met afzuiginstallatie (type schouw), vaatwasser, koelkast en combi-oven/magnetron. De gehele woning is voorzien van vloerverwarming/koeling en laminaat. Via openslaande deuren kom je in de achtertuin. In de achtertuin staat een houten berging. Tevens is de tuin voorzien van een achterom.

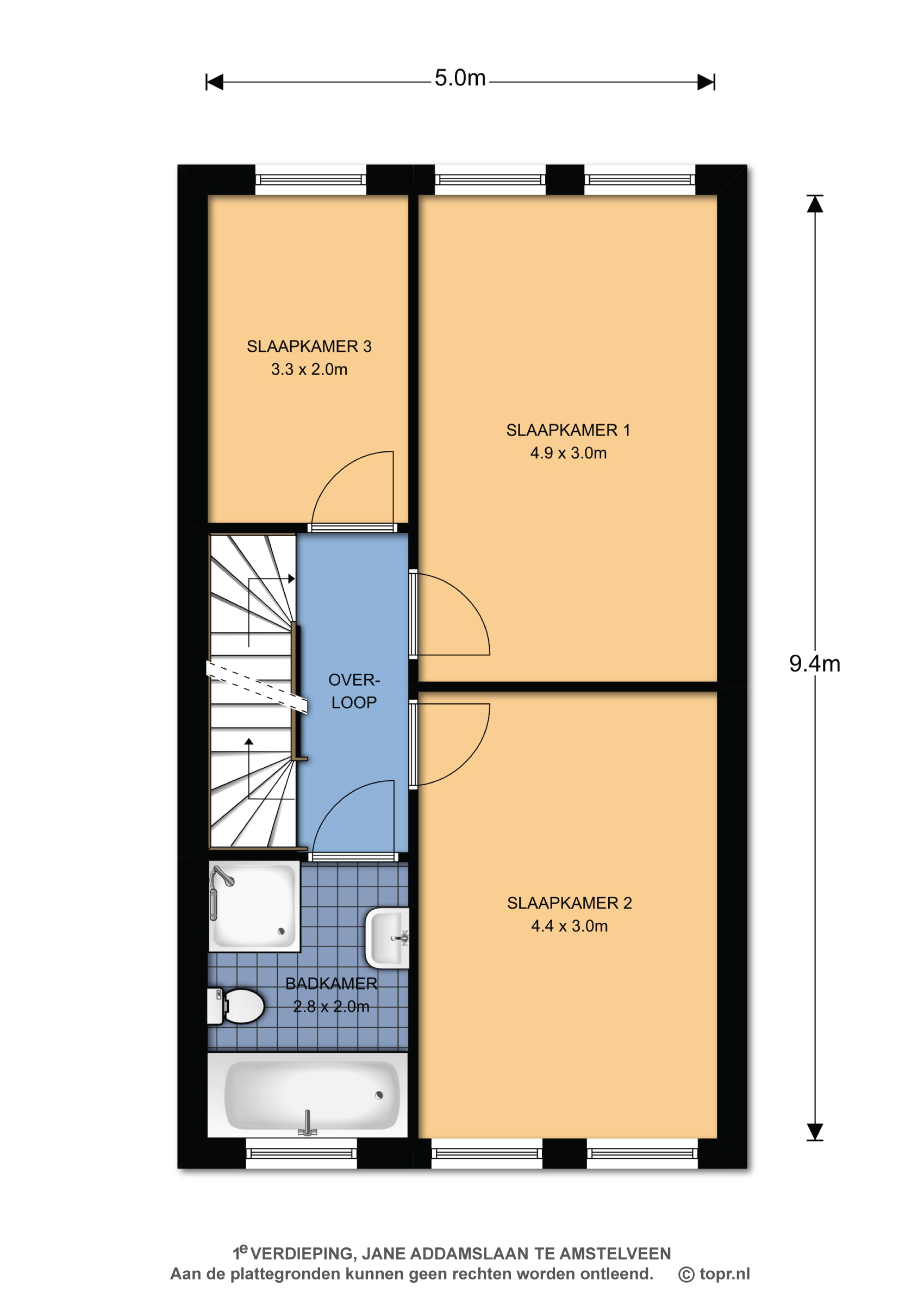
1e Verdieping

Via de overloop heb je toegang tot drie slaapkamers en de luxe badkamer met wanden die zijn betegeld tot aan het plafond. De badkamer is voorzien van een ligbad, douchecabine, zwevend toilet en wastafel met spiegel daarboven. Een raam zorgt voor lichtinval en ventilatie.

2e Verdieping

De tweede verdieping bereik je via een vaste trap. Hier bevindt zich een grote ruimte die is voorzien van twee Velux dakramen, waardoor je beschikt over de benodigde lichtinval.

Bijzonderheden

  • Aantrekkelijke, jonge woning;
  • Diepe achtertuin;
  • Groene omgeving;
  • De woning wordt verwarmd middels stadsverwarming;
  • In de gehele woning vloerverwarming;
  • Goed onderhouden achtertuin met houten berging en achterom;
  • Voorzien van 8 zonnepanelen;
  • Goede openbare voorzieningen;
  • Nabij recreatiemogelijkheden;
  • Alle genoemde maten zijn circa maten;
  • Aan deze informatie kunnen geen rechten worden ontleend.

Voorbehoud

Gunning door verhuurder.

Inkomensnorm

Als je in dit huis wilt wonen moet je bruto (gezamenlijk) maandinkomen minimaal €7.980,00 zijn, waarbij een eventueel 2e inkomen van je levenspartner voor de helft wordt meegerekend.

Waarborgsom

Bij de start van je huurovereenkomst betaal je een waarborgsom van minimaal één maandhuur. In sommige gevallen kan een hogere waarborgsom gevraagd worden.

Langdurige verhuur

Wij richten ons uitsluitend op langdurige verhuur. Dit betekent dat een eventuele huurovereenkomst altijd wordt afgesloten voor onbepaalde tijd met een minimale periode van drie jaar.

Huurvoorwaarden en benodigde inschrijfdocumentatie

Onze huurvoorwaarden en de benodigde inschrijfdocumenten kunt u bekijken via www.stienstra.nl/huurvoorwaarden/

Geliberaliseerd
Ja
Beschikbaar per
16-03-2026
WOZ
€ 701.000
Woning
Kale woning met vloerafwerking
Oppervlakte en inhoud
Woonoppervlakte
130 m2
Inhoud
498 m3
Bouw
Soort woning
Tussenwoning
Bouwjaar
2008
Energielabel
Energielabel
A+++
Indeling
Aantal kamers
5
Aantal slaapkamers
4
Aantal woonlagen
3
Buitenruimte
Tuin
Aanwezig
Ligging
Noord
Beschrijving
Achtertuin, Voortuin
Parkeergelegenheid
Soort parkeren
Openbaar parkeren
Overig
Cijfer vorige bewoner
8
Overdracht
Huurprijs
€ 1.995

Jane Addamslaan 94, 1187 DA Amstelveen op kaart