Dr. Struyckenstraat 98 E47, 4812 BH Breda

Te huur
Ruim hoekappartement met 2 parkeerplaatsen  Moderne keuken, badkamer en toilet  Centraal gelegen 
€1.465 per maand

Omschrijving

Ruim hoekappartement met 2 parkeerplaatsen
Moderne keuken, badkamer en toilet
Centraal gelegen

Introductie

Het appartement is gelegen aan de rand van de gewilde wijk Princenhage en de wijk Heuvel. Op korte afstand zijn basisscholen en kinderopvangcentra gelegen. In de dorpskern van Princenhage vind je een ruim aanbod aan winkels. Voor een boodschap kun je ook terecht op het Dr. Struyckenplein met onder andere ook nog twee supermarkten.

In de omgeving liggen verder nog sportvoorzieningen, kerken, de bibliotheek en de woonboulevard. Met de fiets ben je ook zo in het centrum van Breda of op het centraal station. Het oude en gezellige stadscentrum van Breda biedt je mogelijkheden op het gebied van cultuur, winkelen en uitgaan. Het appartement ligt gunstig ten opzichte van diverse uitvalswegen richting Rotterdam, Antwerpen (A16), Eindhoven en Bergen op Zoom (A58).

Souterrain

Je beschikt over twee eigen genummerde parkeerplaatsen en een berging.

Parterre

Centrale entree met video-intercom en toegang tot lift en trappenhuis.

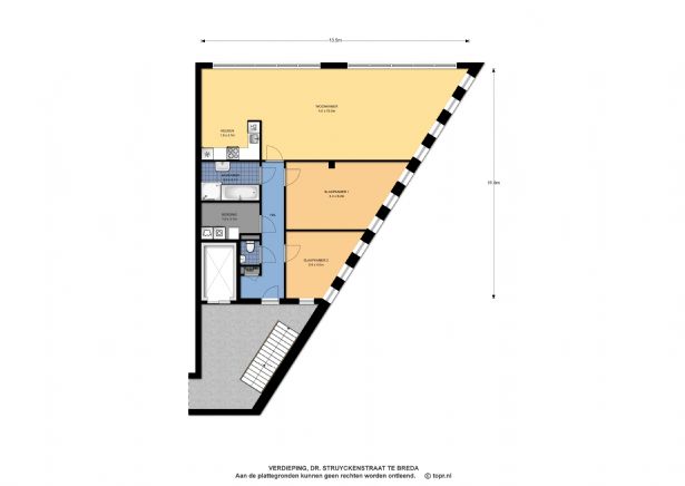
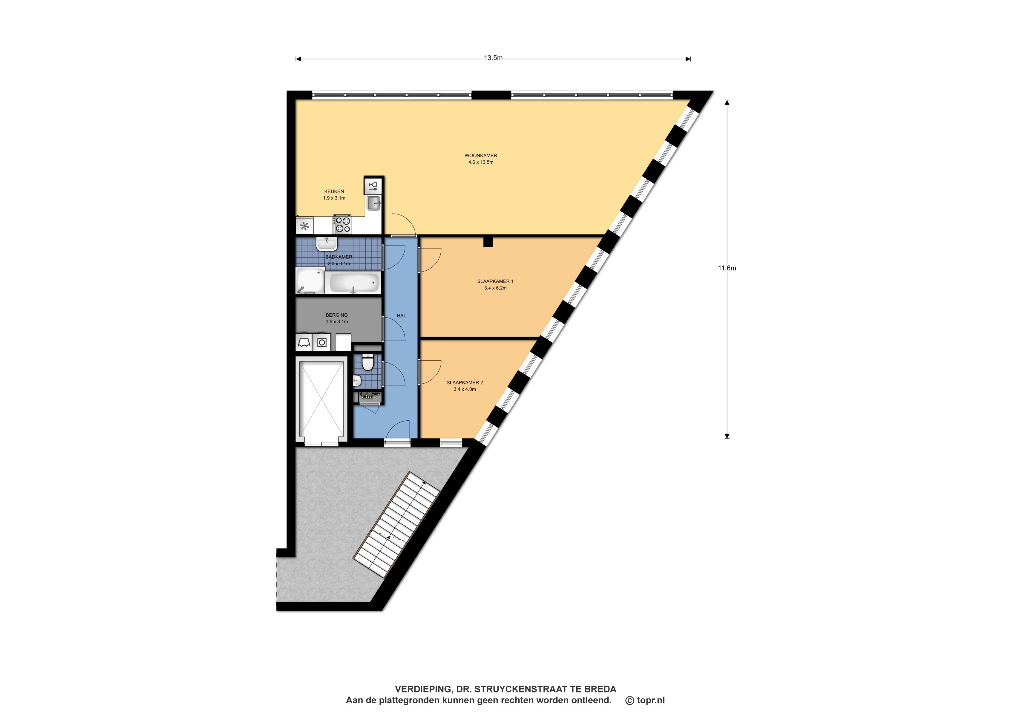
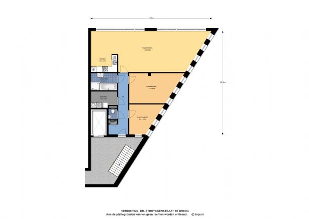
4e Verdieping

Je komt binnen in de entree/hal met meterkast en toiletruimte met wandcloset. De royale woonkamer heeft veel lichtinval. De moderne keuken is voorzien van een hoogglans witte inrichting met granieten blad, vaatwasser, koelkast, afzuigkap en kookplaat. Het appartement beschikt over twee slaapkamers en een geheel betegelde badkamer met ligbad, douche en wastafel. Daarnaast is er een inpandige berging met cv-ketel en wasmachineaansluiting.

Bijzonderheden

  • Ruim hoekappartement met 2 parkeerplaatsen;
  • Moderne keuken, badkamer en toilet;
  • Centraal gelegen;
  • Het appartement is voorzien van dubbele beglazing;
  • Nabij diverse voorzieningen;
  • Centraal gelegen;
  • Alle genoemde maten zijn circa maten;
  • Aan deze informatie kunnen geen rechten worden ontleend.

Voorbehoud

Gunning door verhuurder.

Servicekosten

De huurprijs is exclusief servicekosten. Deze bedragen € 60 ,00 per maand.

Inkomensnorm

Als je in dit huis wilt wonen moet je bruto (gezamenlijk) maandinkomen minimaal €5.860,00 zijn, waarbij een eventueel 2e inkomen van je levenspartner voor de helft wordt meegerekend.

Waarborgsom

Bij de start van je huurovereenkomst betaal je een waarborgsom van minimaal één maandhuur. In sommige gevallen kan een hogere waarborgsom gevraagd worden.

Langdurige verhuur

Wij richten ons uitsluitend op langdurige verhuur. Dit betekent dat een eventuele huurovereenkomst altijd wordt afgesloten voor onbepaalde tijd met een minimale periode van drie jaar.

Huurvoorwaarden en benodigde inschrijfdocumentatie

Onze huurvoorwaarden en de benodigde inschrijfdocumenten kunt u bekijken via www.stienstra.nl/huurvoorwaarden/

Aanvullende informatie

Deze woning wordt aangeboden in samenwerking met Huysshop Internetmakelaar.

Overdracht
Huurprijs
€ 1.465
Geliberaliseerd
Ja
Beschikbaar per
01-03-2026
WOZ
€ 314.000
Woning
Kale woning
Oppervlakte en inhoud
Woonoppervlakte
112 m2
Inhoud
250 m3
Bouw
Soort woning
Appartement
Bouwjaar
2008
Energielabel
Energielabel
A
Indeling
Aantal kamers
3
Aantal slaapkamers
2
Aantal woonlagen
1
Lift
Aanwezig
Parkeergelegenheid
Soort parkeren
Parkeergarage

Dr. Struyckenstraat 98 E47, 4812 BH Breda op kaart

Appartement

Plattegrond