Crusaatstede 52, 5431 AK Cuijk

Te koop
Charmante tussenwoning  Achtertuin op het zuiden  Gelegen aan rustige straat in De Valuwe 
€287.500 k.k.

Omschrijving

Charmante tussenwoning
Achtertuin op het zuiden
Gelegen aan rustige straat in De Valuwe

Introductie

Ben je op zoek naar een woning met volop mogelijkheden? Dan wacht deze charmante tussenwoning met zonnige tuin op jou!

De woning is gelegen in de geliefde wijk De Valuwe – een wijk die volop in ontwikkeling is, maar waar het warme, gemoedelijke karakter nog altijd voelbaar is. Je woont hier rustig, met volop groen in de buurt, maar toch met alle voorzieningen binnen handbereik. Supermarkten, basisscholen, speeltuinen, sportclubs en een gezondheidscentrum liggen op korte loop- of fietsafstand.

Ook de bereikbaarheid is een groot pluspunt: het station van Cuijk ligt op slechts enkele minuten fietsen, en met de auto ben je zo op de uitvalswegen richting Nijmegen, Venlo of de A73. Liever de natuur in? De Maas, de Kraaijenbergse Plassen en diverse wandel- en fietsroutes nodigen je uit voor een frisse neus of een actieve dag buiten.

Kortom, een fijne gezinswoning met veel mogelijkheden gelegen in een geliefde buurt!

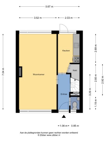
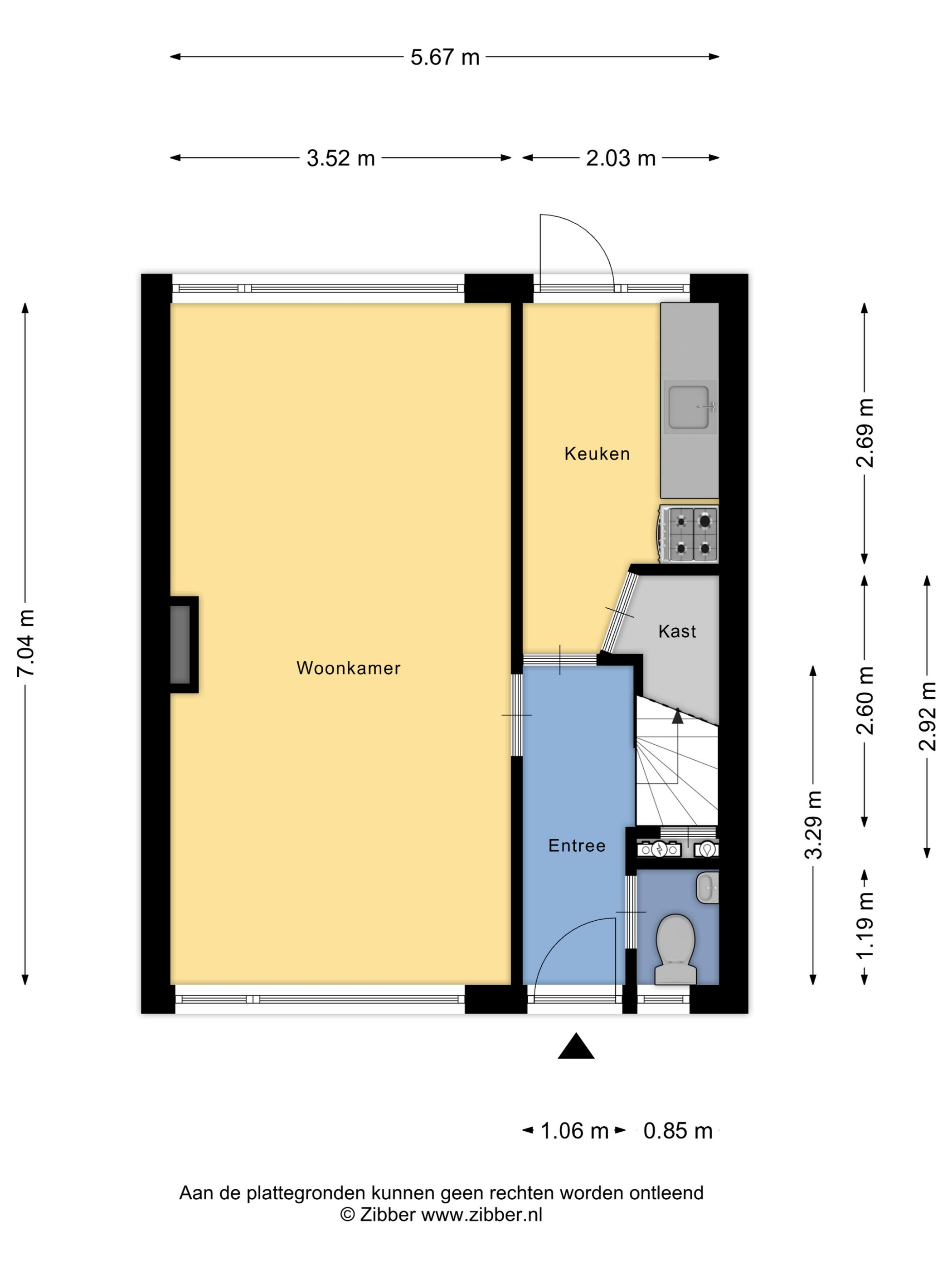
Begane grond

Via de entree/hal met meterkast, trapopgang en toilet kom je in de ruime woonkamer die grenst aan de halfopen keuken met een eenvoudig keukenblok. In de hal bevindt zich ook de toegang tot de kelder. De woonkamer krijgt veel licht door de grote ramen en geeft toegang tot de zonnige achtertuin.

De achtertuin ligt op het zuiden én beschikt over een eigen achterom – ideaal voor fietsen of tuinspullen.

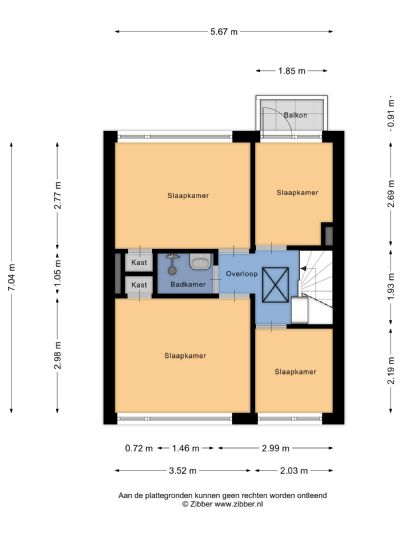
1e Verdieping

Via de overloop kom je bij 4 slaapkamers en de badkamer met douche, wastafel en een tweede toilet. Enkele slaapkamers zijn voorzien van vaste inbouwkasten.

2e Verdieping

De zolder is bereikbaar via een vlizotrap en biedt extra bergruimte.

Bijzonderheden

  • Leuke tussenwoning met veel mogelijkheden;
  • Zolder met extra bergruimte;
  • Zonnige achtertuin;
  • Nabij scholen, sportaccommodaties, openbaar vervoer en uitvalswegen;
  • Diverse recreatiemogelijkheden in de omgeving;
  • Meetrapport aanwezig;
  • Aan deze informatie kunnen geen rechten worden ontleend.

Notaris

Er is een projectnotaris van toepassing.

Aanvullende informatie

Deze woning wordt aangeboden in samenwerking met Huysshop Internetmakelaar.

Overdracht
Koopprijs
€ 287.500
Beschikbaar per
22-01-2026
WOZ
€ 230.000
Woning
Kale woning
Oppervlakte en inhoud
Woonoppervlakte
80 m2
Perceeloppervlakte
122 m2
Inhoud
346 m3
Bouw
Soort woning
Tussenwoning
Bouwjaar
1965
Energielabel
Energielabel
B
Indeling
Aantal kamers
4
Aantal slaapkamers
3
Aantal woonlagen
3
Buitenruimte
Gebouwgebonden
2 m2
Tuin
Aanwezig
Ligging
Zuid
Beschrijving
Achtertuin, Voortuin, Plaats, Zonneterras
Parkeergelegenheid
Soort parkeren
Openbaar parkeren

Crusaatstede 52, 5431 AK Cuijk op kaart