Chopinstraat 142, 2901 ED Capelle aan den IJssel

Te koop
Ruime eengezinswoning  3 slaapkamers en grote zolderkamer  Kindvriendelijke wijk 
€449.000 k.k.

Omschrijving

Ruime eengezinswoning
3 slaapkamers en grote zolderkamer
Kindvriendelijke wijk

Introductie

Ten zuidwesten van Capelle aan den IJssel, in de wijk die in het teken staat van muziek ('s-Gravenland), ligt deze nette woning.
's-Gravenland is kindvriendelijk en voorzien van waterpartijen, groenvoorzieningen en winkelcentrum Puccinipassage. In dit winkelcentrum kun je terecht voor onder andere je dagelijkse boodschappen.

Wil je de metro of de bus nemen? Dat kan, want op steenworp afstand bevindt zich zowel een metrostation (Capelsebrug) als een bushalte. De uitvalswegen (A16/A20) bereik je ook in een mum van tijd.

Kortom: een mooie tussenwoning gelegen in een leuke en centraal gelegen wijk!

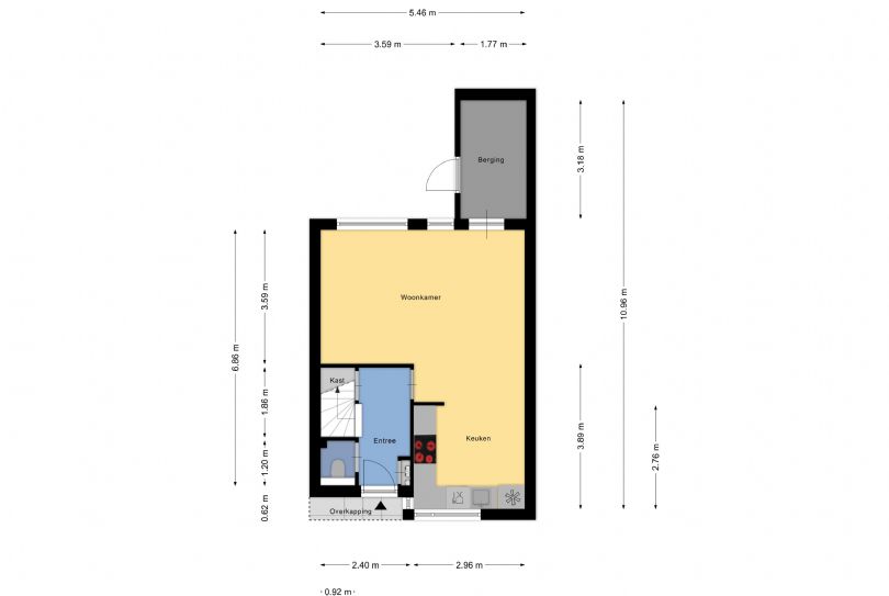
Begane grond

Je betreedt de woning via de entree/hal met trapopgang en een separate toiletruimte. Aan de voorzijde van de woning bevindt zich de open keuken. De ruime woonkamer biedt toegang tot de aangebouwde berging. Vanuit de berging bereik je de achtertuin, die is voorzien van een praktische achterom.

1e Verdieping

Via de overloop heb je toegang tot drie slaapkamers en de badkamer. De badkamer is uitgerust met een douche, wastafel en een tweede toilet.

2e Verdieping

Via een vaste trap bereik je de bovenste verdieping. Op de voorzolder is ruimte voor de wasmachine en droger en hier bevindt zich tevens de cv-ketel. Vanuit de voorzolder heb je toegang tot de zolderkamer, die dankzij het grote dakvenster een lichte en aangename ruimte is.

Bijzonderheden

  • Ruime eengezinswoning;
  • 4 slaapkamers;
  • Voldoende parkeermogelijkheden;
  • Aangebouwde berging;
  • Alle genoemde maten zijn circa maten;
  • Aan deze informatie kunnen geen rechten worden ontleend.

Notaris

Voor de akte van levering is een projectnotaris van toepassing.

Aanvullende informatie

Deze woning wordt aangeboden in samenwerking met Huysshop Internetmakelaar.

Overdracht
Koopprijs
€ 449.000
Beschikbaar per
16-03-2026
WOZ
€ 451.000
Woning
Kale woning
Oppervlakte en inhoud
Woonoppervlakte
101 m2
Perceeloppervlakte
nog uit te meten m2
Inhoud
375,78 m3
Bouw
Soort woning
Tussenwoning
Bouwjaar
1990
Energielabel
Energielabel
A
Indeling
Aantal kamers
5
Aantal slaapkamers
4
Aantal woonlagen
3
Buitenruimte
Gebouwgebonden
1,50 m2
Tuin
Aanwezig
Ligging
Zuidwest
Beschrijving
Achtertuin, Voortuin
Parkeergelegenheid
Soort parkeren
Openbaar parkeren
Overig
Cijfer vorige bewoner
8

Chopinstraat 142, 2901 ED Capelle aan den IJssel op kaart