Catsveld 14, 2804 BH Gouda

Te koop
Maisonnette met Garage  Centrale ligging  Woonkamer met vide 
€319.000 k.k.

Omschrijving

Maisonnette met Garage
Centrale ligging
Woonkamer met vide

Introductie

In de geliefde wijk Bloemendaal, in het complex aan het Catsveld, ligt deze knusse maisonnette met o.a. een garage en dakterras. Verder beschikt de maisonnette over een woonkamer met vide, een (open) keuken, 1 slaapkamer en een badkamer. Het geheel heeft een speelse indeling met veel mogelijkheden!

De maisonnette is omgeven door groen met veel faciliteiten op steenworp afstand. Zo bevindt zich praktisch om de hoek het winkelcentrum 'Bloemendaal' met o.a. een drietal supermarkten en winkels voor uw dagelijkse boodschappen.

Je hoeft echter Gouda niet uit voor een dagje shoppen of amusement. Het centrum van Gouda heeft een gevarieerd winkelaanbod in combinatie met het cultureel erfgoed zoals de Goudse Kaasmarkt en het monumentale stadhuisgebouw. Het historische centrum ligt praktisch in jouw achtertuin. Verdere voorzieningen in de buurt zijn onder andere scholen, fitnesscentra en het Groene Hart ziekenhuis.

Het station van Gouda ligt op fietsafstand en binnen 20 autominuten bent u in Rotterdam of in Den Haag welke goed bereikbaar zijn via de autowegen A12 en A20.

Kortom, jong of oud, Gouda biedt aan al haar inwoners een prettige en gevarieerde leefomgeving.

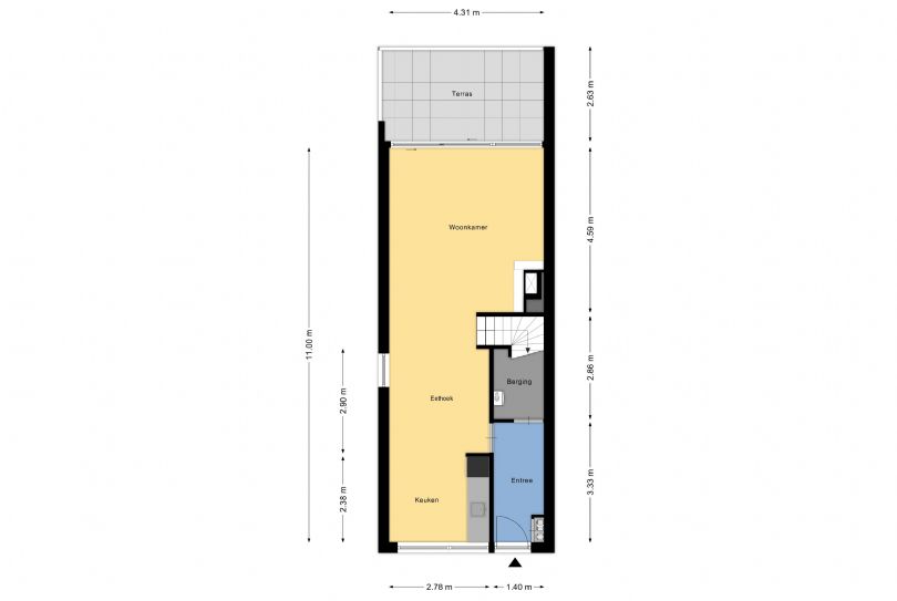
Begane grond

Entree met bellentableau en brievenbus.

2e Verdieping

Middels de hal, met meterkast, bergruimte met cv ketel, bereik je de woonkamer met trapopgang naar de 3e verdieping. De open keuken is standaard uitgevoerd. Aan de achterzijde van de woning heb je toegang tot het zonnige dakterras op het zuidoosten met uitzicht op het binnenpark.

3e Verdieping

Via de overloop met vide bereik je de ruime slaapkamer en badkamer met douche, wastafel en toilet.

Bijzonderheden

  • Maisonnette met garage;
  • Centrale ligging;
  • Woonkamer met vide;
  • Speelse indeling met veel mogelijkheden;
  • Dakterras;
  • Nabij het centrum, parken, natuurgebieden, NS station en uitvalswegen (A12/A20);
  • Winkelcentrum Bloemendaal om de hoek;
  • Alle genoemde maten zijn circa maten;
  • Aan deze informatie kunnen geen rechten worden ontleend.

Notaris

Projectnotaris.

VVE - bijdrage

De bijdrage aan de Vereniging van Eigenaren is voor het appartement vastgesteld op € 144,91 per maand en voor de garage € 18,45 per maand.

Aanvullende informatie

Deze woning wordt aangeboden in samenwerking met Huysshop Internetmakelaar.

Overdracht
Koopprijs
€ 319.000
Beschikbaar per
06-02-2026
WOZ
€ 255.000
Woning
Kale woning
Oppervlakte en inhoud
Woonoppervlakte
70 m2
Inhoud
232 m3
Bouw
Soort woning
Appartement
Bouwjaar
1975
Energielabel
Energielabel
E
Indeling
Aantal kamers
2
Aantal slaapkamers
1
Aantal woonlagen
2
Buitenruimte
Gebouwgebonden
12 m2
Parkeergelegenheid
Soort parkeren
Op eigen terrein
Overig
Cijfer vorige bewoner
7

Catsveld 14, 2804 BH Gouda op kaart