Buitenerf 143, 4824 HD Breda

Te koop
Ruime tussenwoning in de wijk Haagse Beemden  Grote achtertuin aan het water  Kindvriendelijke wijk 
€375.000 k.k.

Omschrijving

Ruime tussenwoning in de wijk Haagse Beemden
Grote achtertuin aan het water
Kindvriendelijke wijk

Introductie

Stap binnen in deze royale tussenwoning met drie slaapkamers en een heerlijke achtertuin.
Gelegen in een rustige, kindvriendelijke wijk in het noordwesten van Breda, omringd door autoluwe hofjes en veel groen. Hier geniet je van privacy én een veilige speelomgeving voor de kinderen.

Binnen enkele minuten fiets je naar winkelcentrum Heksenwiel, sportclubs en recreatievoorzieningen. Zin in natuur? Het prachtige buitengebied ligt letterlijk om de hoek. En dankzij de uitstekende verbindingen naar de A16, A27 en A58 ben je zo onderweg naar Antwerpen, Rotterdam, Utrecht of Tilburg. Handig: jouw wijk heeft zelfs een eigen treinstation!

Kortom: een plek waar comfort, bereikbaarheid en woongenot samenkomen. Hier voelt jouw gezin zich direct thuis!

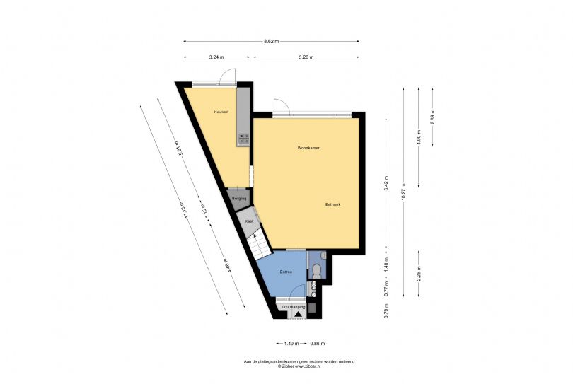
Begane grond

Deze woning verrast je direct: dankzij de bredere achterzijde geniet je van extra leefruimte, zowel beneden als boven. Perfect voor wie houdt van comfort en flexibiliteit!

Bij binnenkomst vind je een ruime hal met trapopgang, meterkast, berging en toiletruimte. Vanuit hier stap je de lichte woonkamer binnen, compleet met handige trapkast. De keuken bevindt zich aan de achterzijde en biedt volop kansen om jouw droomkeuken te realiseren.
De achtertuin is royaal van formaat én met een unieke ligging aan het water.
Hier kun je jouw creativiteit kwijt: van een groene oase tot een strakke moderne tuin – alles is mogelijk.

1e Verdieping

Via de overloop bereik je drie ruime slaapkamers, waarvan twee zijn voorzien van een Velux-dakraam voor extra licht en sfeer. Eén van de kamers biedt bovendien toegang tot een royale inpandige berging – ideaal voor al je spullen.

De badkamer is uitgerust met een inloopdouche, een stijlvolle wastafel, een designradiator en een tweede toilet.

Bijzonderheden

  • Ruime tussenwoning wijk Haagse Beemden;
  • Ruime achtertuin;
  • Kindvriendelijke wijk;
  • 3 slaapkamers en ruime berging;
  • Verwarming en warm water via stadsverwarming;
  • Winkelcentrum Donk en Heksenwiel op fietsafstand van de woning;
  • Alle genoemde maten zijn circa maten;
  • Aan deze informatie kunnen geen rechten worden ontleend.

Notaris

Projectnotaris.

Aanvullende informatie

Deze woning wordt aangeboden in samenwerking met Huysshop Internetmakelaar.

Overdracht
Koopprijs
€ 375.000
Beschikbaar per
11-12-2025
WOZ
€ 351.000
Woning
Kale woning
Oppervlakte en inhoud
Woonoppervlakte
108 m2
Perceeloppervlakte
273 m2
Inhoud
384 m3
Bouw
Soort woning
Tussenwoning
Bouwjaar
1981
Energielabel
Energielabel
A
Indeling
Aantal kamers
4
Aantal slaapkamers
3
Aantal woonlagen
2
Buitenruimte
Gebouwgebonden
0,90 m2
Tuin
Aanwezig
Ligging
Noordwest
Beschrijving
Achtertuin, Voortuin
Parkeergelegenheid
Soort parkeren
Openbaar parkeren
Overig
Cijfer vorige bewoner
10

Buitenerf 143, 4824 HD Breda op kaart