Bloemendalerhof 6, 6132 SE Sittard

Te koop
Royale 2^1 kap woning met garage  3 slaapkamers  Royale zonnige tuin 
€369.000 k.k.

Omschrijving

Royale 2^1 kap woning met garage
3 slaapkamers
Royale zonnige tuin

Introductie

Deze goed onderhouden woning met garage ligt in de rustige wijk Haagsittardpark nabij het centrum van Sittard. Wonen op een rustige locatie met een gezellig stadscentrum, de basisschool en een prachtig wandelpark op loopafstand.

De woning heeft een L-vormige woonkamer met een open en complete keuken, drie slaapkamers, een badkamer met ligbad en douche en een royale zolder die veel mogelijkheden biedt. De wanden zijn reeds ontdaan van behang, waardoor de woning direct een neutrale basis heeft en een nieuwe bewoner deze eenvoudig geheel naar eigen wens kan afwerken en inrichten.

Sittard is een bruisende stad! Met de wekelijkse versmarkt, de gezellige terrassen en de jaarlijks terugkerende evenementen, is er altijd wel iets leuks te beleven. Het centraal station, het openbaar vervoer en diverse uitvalswegen zoals de A2 en A76 zijn in de directe nabijheid.

Kortom, ben je op zoek naar een goed onderhouden woning in een rustige woonomgeving met het bruisende stadsleven om de hoek? Dan valt deze woning beslist bij je in de smaak!

Begane grond

De entree geeft toegang geeft tot de hal met de toiletruimte, de trapopgang naar de 1e verdieping en de ruime L-vormige woonkamer. De woonkamer is voorzien van grote raampartijen waardoor een optimale lichtinval gewaarborgd is. Via de schuifpui heb je toegang tot de onderhoudsarme en geheel omsloten tuin.

De moderne witte keuken in hoekopstelling is voorzien van een koelkast, oven, gasfornuis, afzuigkap en een hardstenen werkblad. Via de woonkamer is de tuin te bereiken die tevens toegang geeft tot de garage.

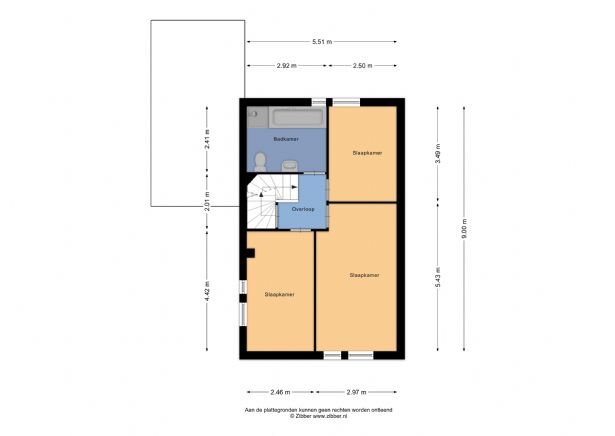
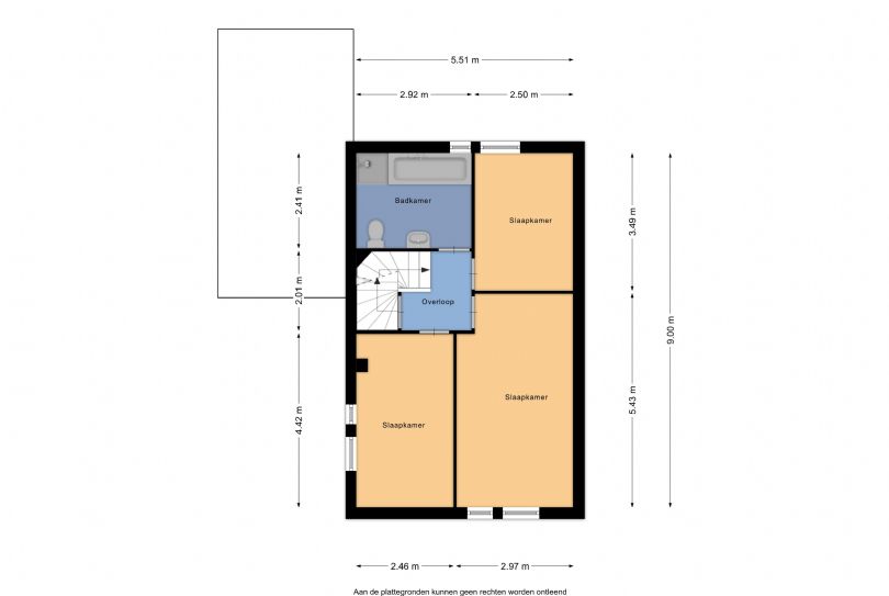
1e Verdieping

De overloop geeft toegang tot 3 royale slaapkamers, een nette badkamer met ligbad, douche, wastafel, 2e toilet.

2e Verdieping

De zolderverdieping is bereikbaar met een vaste trap en voor vele doeleinden geschikt. Hier tref je de ruime bergzolder met dakraam aan, bergkasten, cv-installatie, mechanische ventilatie-installatie en wasmachineaansluiting. Wordt het een werk-, hobby-, of speelzolder, of wellicht een extra slaapkamer? De keuze is aan jou!

Bijzonderheden

  • Royale woning met garage;
  • 3 slaapkamers;
  • Royale zonnige tuin;
  • Moderne keuken en nette badkamer;
  • Op loopafstand van diverse voorzieningen, scholen, winkels en natuurgebied;
  • Alle genoemde maten zijn circa maten;
  • Aan deze informatie kunnen geen rechten worden ontleend.

Notaris

Voor de akte van levering is een projectnotaris van toepassing.

Aanvullende informatie

Deze woning wordt aangeboden in samenwerking met Huysshop Internetmakelaar.

Overdracht
Koopprijs
€ 369.000
Beschikbaar per
01-04-2026
WOZ
€ 398.000
Woning
Kale woning
Oppervlakte en inhoud
Woonoppervlakte
125 m2
Perceeloppervlakte
245 m2
Inhoud
526 m3
Bouw
Soort woning
2-onder-1-kapwoning
Bouwjaar
1992
Energielabel
Energielabel
B
Indeling
Aantal kamers
4
Aantal slaapkamers
3
Aantal woonlagen
3
Buitenruimte
Gebouwgebonden
4,5 m2
Tuin
Aanwezig
Ligging
Noordwest
Beschrijving
Achtertuin, Voortuin
Parkeergelegenheid
Soort parkeren
Op eigen terrein

Bloemendalerhof 6, 6132 SE Sittard op kaart