Beverveen 414, 3205 AM Spijkenisse

Te koop
In de ruim opgezette groene woonwijk Waterland  3 slaapkamers en grote zolder  Vrij uitzicht 
€347.500 k.k.

Omschrijving

In de ruim opgezette groene woonwijk Waterland
3 slaapkamers en grote zolder
Vrij uitzicht

Introductie

In de woonwijk Waterland vormt water een rode draad. De wijk kenmerkt zich door de aantrekkelijke elementen uit het oude polderschap. Behalve watergangen vind je hier bijvoorbeeld ook bomen en dijkjes. Verder kenmerkt deze wijk zich door de (autoluwe) woonerven. Je kunt je kinderen hier met een gerust hart buiten laten spelen.

Ook vind je hier onder andere een aantal basisscholen, een gezondheidscentrum en een winkelcentrum voor je dagelijkse boodschappen. Een rondje joggen, gezellig picknicken of de hond uitlaten doe je in Park Waterland.

Ook praktisch is de ligging van metrostation Heemraadlaan, dat aan de rand van de wijk ligt.

Zie jij jezelf al wonen in de wijk Waterland? Dan is deze woning misschien iets voor jou.

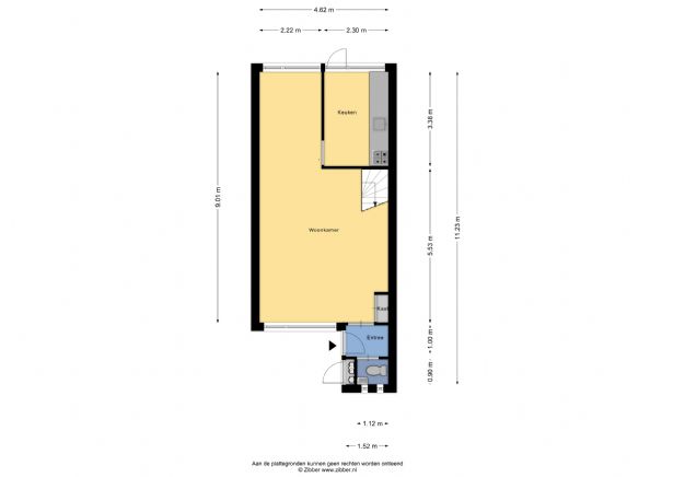
Begane grond

Je betreedt de woning via de entree/tochtportaal, met buiten de meterkast en binnen het toilet. De ruime woonkamer heeft een open trap naar de eerste verdieping. Dankzij de grote raampartijen en de toegangsdeur naar de achtertuin geniet je van veel lichtinval. De open keuken bevindt zich aan de achterzijde van de woning. De achtertuin ligt op het noord-westen en beschikt over een stenen berging en een achterom.

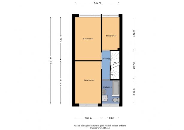
1e Verdieping

Via de overloop bereik je de drie slaapkamers en de badkamer. De badkamer is voorzien van een tweede toilet, een wastafel, ligbad en de aansluiting voor de wasmachine.

2e Verdieping

De tweede verdieping is bereikbaar via een vaste trap. Hier vind je een ruime open zolder met dakraam. Je hebt hier de mogelijkheid om een vierde slaapkamer te realiseren. Op deze zolderverdieping bevindt zich ook de cv-combiketel.

Bijzonderheden

  • In de ruim opgezette groene woonwijk Waterland;
  • 3 slaapkamers, mogelijkheid voor extra slaapkamers;
  • Vrij uitzicht;
  • Centrale verwarming en warm water middels cv combiketel;
  • De woning beschikt over houten kozijnen met gedeeltelijk dubbele beglazing;
  • Betonvloeren;
  • Alle genoemde maten zijn circa maten;
  • Aan deze informatie kunnen geen rechten worden ontleend.

Notaris

Projectnotaris.

Aanvullende informatie

Deze woning wordt aangeboden in samenwerking met Huysshop Internetmakelaar.

Overdracht
Koopprijs
€ 347.500
Beschikbaar per
10-10-2025
WOZ
€ 271.000
Woning
Kale woning
Oppervlakte en inhoud
Woonoppervlakte
105 m2
Perceeloppervlakte
106 m2
Inhoud
335 m3
Bouw
Soort woning
Tussenwoning
Bouwjaar
1975
Energielabel
Energielabel
C
Indeling
Aantal kamers
4
Aantal slaapkamers
3
Aantal woonlagen
3
Buitenruimte
Tuin
Aanwezig
Ligging
Noordwest
Beschrijving
Achtertuin, Voortuin
Parkeergelegenheid
Soort parkeren
Openbaar parkeren

Beverveen 414, 3205 AM Spijkenisse op kaart