Anna Reynvaanstraat 64, 1963 BW Heemskerk

Te koop
Ruime tussenwoning met 4 slaapkamers  Op fietsafstand van strand en duinen  Nabij centrum 
€439.500 k.k.

Omschrijving

Ruime tussenwoning met 4 slaapkamers
Op fietsafstand van strand en duinen
Nabij centrum

Introductie

Deze fraaie tussenwoning ligt in de (kindvriendelijke) wijk Breedweer aan de rand van Heemskerk en is o.a. voorzien van 4 slaapkamers, een ruime zolderverdieping en extra brede achtertuin met berging.

Heemskerk heeft veel recreatieve en sportieve mogelijkheden. Zo zijn er veel sportverenigingen zoals voetbal-, tennis-, zwem- en turnclubs. Het strand, de duinen, cafés en restaurants liggen op korte fietsafstand van de woning. Daarnaast ben je ook zo in het centrum van Heemskerk. In het dorp is het winkelaanbod voor een gemeente als Heemskerk zeer uitgebreid te noemen.

Kortom heerlijk wonen met veel voorzieningen in de directe omgeving.

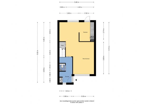
Begane grond

De entree/hal met meterkast, trapopgang en toiletruimte geeft toegang tot de woonkamer welke is voorzien van een eet- en zitgedeelte. Aan de achterzijde van de woning ligt de semi open keuken met een eenvoudig keukenblok. De achtertuin is gelegen op het oosten en heeft een berging en eigen achterom.

1e Verdieping

Aan de overloop liggen 3 slaapkamers en badkamer met douche, wastafel en 2e toilet.

2e Verdieping

Deze verdieping is te bereiken met een vaste trap. Hier bevindt zich de voorzolder met een aparte cv-ruimte en de aansluiting voor de wasmachine én de ruime 4e zolder(slaap)kamer.

Bijzonderheden

  • Ruime woning met 4 slaapkamers;
  • Op fietsafstand van strand, duinen & NS
  • station;
  • Nabij centrum;
  • Kindvriendelijke wijk;
  • Autoluwe straat;
  • De achtertuin met berging en achterom gelegen op het oosten;
  • Alle genoemde maten zijn circa maten;
  • Aan deze informatie kunnen geen rechten worden ontleend.

Notaris

Projectnotaris.

Aanvullende informatie

Deze woning wordt aangeboden in samenwerking met Huysshop Internetmakelaar.

Overdracht
Koopprijs
€ 439.500
Beschikbaar per
29-10-2025
WOZ
€ 376.000
Woning
Kale woning
Oppervlakte en inhoud
Woonoppervlakte
118 m2
Perceeloppervlakte
141 m2
Inhoud
419 m3
Bouw
Soort woning
Tussenwoning
Bouwjaar
1985
Energielabel
Energielabel
B
Indeling
Aantal kamers
5
Aantal slaapkamers
4
Aantal woonlagen
3
Buitenruimte
Tuin
Aanwezig
Ligging
Oost
Beschrijving
Achtertuin, Voortuin
Parkeergelegenheid
Soort parkeren
Op eigen terrein

Anna Reynvaanstraat 64, 1963 BW Heemskerk op kaart