Waterlelie 22, 2804 PV Gouda

Te koop
Geschakelde 2^1 kapwoning met garage  Tuin aan het water  Populaire Water- en Grassenbuurt 
€575.000 k.k.

Omschrijving

Geschakelde 2^1 kapwoning met garage
Tuin aan het water
Populaire Water- en Grassenbuurt

Introductie

Deze sfeervolle geschakelde twee-onder-een-kapwoning met tuin aan het water en een ruime garage is gelegen in de geliefde Water- en Grassenbuurt van Gouda. De woning biedt onder andere een speelse, lichte woonkamer, drie comfortabele slaapkamers en een royale, op het oosten gelegen tuin waar je heerlijk van de ochtendzon kunt genieten.

De wijk staat bekend om het groene karakter en de rustige, kindvriendelijke straatjes. In de directe omgeving vind je volop voorzieningen: doe je dagelijkse boodschappen in Winkelcentrum Bloemendaal, sport bij de nabijgelegen accommodaties of geniet van de prachtige natuur rondom de Reeuwijkse Plassen. Dankzij de gunstige ligging zijn de diverse uitvalswegen bovendien binnen enkele minuten bereikbaar. Kortom: een fantastische plek om te wonen!

Wordt deze leuke woning met al haar mogelijkheden jouw nieuwe (t)huis?

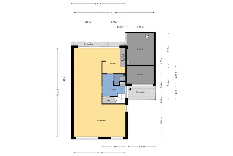
Begane grond

De knusse voortuin met oprit naar de garage leidt je naar de overdekte entree en de hal, waar je de garderobe, toiletruimte, meterkast, toegang tot de keuken en de trap naar de eerste verdieping vindt. De speelse, L-vormige woonkamer is tuingericht en beschikt over een schuifpui naar de achtertuin op het oosten, die bovendien directe toegang biedt tot de garage.

In deze fijne tuin aan het water kun je het hele jaar door genieten van de rust, het groen en de privacy die deze plek te bieden heeft.

1e Verdieping

De overloop met een vaste bergkast, waarin de cv-installatie is opgesteld, geeft toegang tot drie ruime slaapkamers en de badkamer. Deze is voorzien van een ligbad/douche, een tweede toilet en een wastafel. De badkamer is ruim van opzet en kun je helemaal naar je eigen smaak moderniseren.

Bijzonderheden

  • Geschakelde 2^1 kapwoning met garage;
  • Tuin aan het water;
  • Populaire Water en Grassenbuurt;
  • Verwarming en warm water middels cv combi ketel Nefit Proline Next, 2016;
  • Centrale ligging en toplocatie;
  • 3 slaapkamers;
  • Alle genoemde maten zijn circa maten;
  • Aan deze informatie kunnen geen rechten worden ontleend.

Notaris

Projectnotaris.

Aanvullende informatie

Deze woning wordt aangeboden in samenwerking met Huysshop Internetmakelaar.

Overdracht
Koopprijs
€ 575.000
Beschikbaar per
09-01-2026
WOZ
€ 470.000
Woning
Kale woning
Oppervlakte en inhoud
Woonoppervlakte
109 m2
Perceeloppervlakte
241 m2
Inhoud
454 m3
Bouw
Soort woning
Geschakelde 2-onder-1-kapwoning
Bouwjaar
1975
Energielabel
Energielabel
D
Indeling
Aantal kamers
4
Aantal slaapkamers
3
Aantal woonlagen
2
Buitenruimte
Gebouwgebonden
8 m2
Tuin
Aanwezig
Ligging
Oost
Beschrijving
Achtertuin, Voortuin
Parkeergelegenheid
Soort parkeren
Op eigen terrein
Overig
Cijfer vorige bewoner
9

Waterlelie 22, 2804 PV Gouda op kaart