Vestingwal 47 A, 5664 PC Geldrop

Te huur
Moderne woning met parkeerplaats  Uitstekende ligging nabij het centrum  Luxe keuken en sanitair 
€1.425 per maand

Omschrijving

Moderne woning met parkeerplaats
Uitstekende ligging nabij het centrum
Luxe keuken en sanitair

Introductie

Deze royale tussenwoning ligt nabij het centrum van Geldrop, in de gewilde woonwijk 'Overburght-Hofstede' en is o.a. voorzien van een luxe keuken en badkamer, 3 slaapkamers, een onderhoudsvriendelijke tuin op het zuiden en een eigen parkeerplaats. De woning is voorzien van 8 zonnepanelen.

Geldrop heeft een authentieke dorpse sfeer. In het centrum vind je diverse winkels, horeca en het Gemeentehuis, en alle voorzieningen zijn binnen handbereik. Maar je bent ook dichtbij de natuur van de Peel en de Strabrechtse Heide. Overburght beschikt over een bushalte en ligt nabij diverse uitvalswegen. Zo ben je vanuit Overburght binnen enkele autominuten op de A67. Op de prachtige Strabrechtse Heide is het heerlijk fietsen, wandelen of kun je te paard diverse ruiterpaden rijden.

Kortom: een fijne woning voor jou en je gezin, met veel faciliteiten in de directe omgeving!

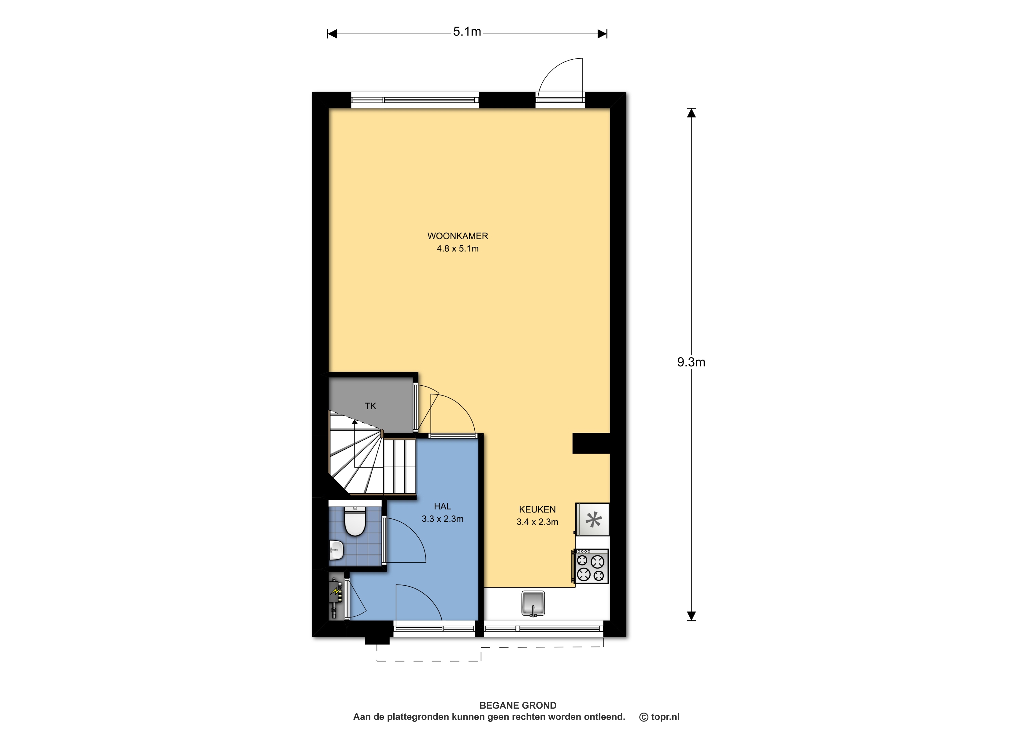
Begane grond

Via de overdekte entree betreed je de hal met meterkast, garderobe en de toiletruimte. De woonkamer heeft volop lichtinval en biedt uitzicht op én toegang tot de achtertuin met houten berging en het terras op het zuiden. De open keuken met luxe, complete keukeninrichting is o.a. voorzien van een kookplaat, afzuigkap, oven, koelkast en vaatwasser. Het geheel is afgewerkt met een natuurstenen werkblad.

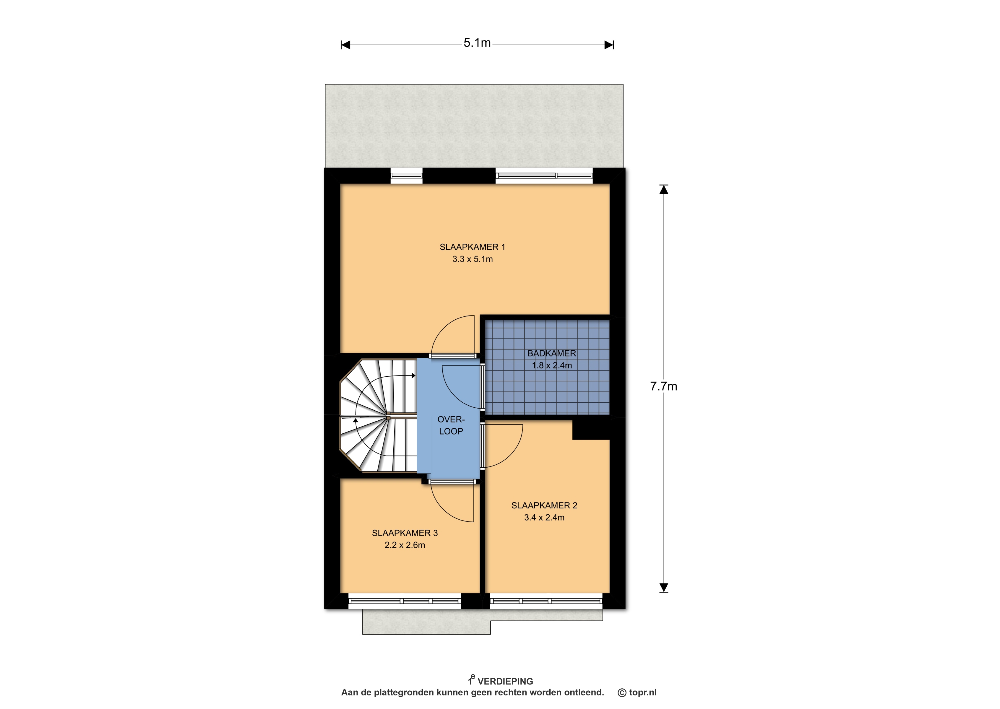
1e Verdieping

Via de overloop heb je toegang tot 3 slaapkamers en de moderne badkamer met douche, wastafel en tweede toilet.

2e Verdieping

De tweede verdieping is met een vaste trap bereikbaar. Hier vind je een ruime zolder met cv-ketel en wasmachineaansluiting.

Bijzonderheden

  • Moderne woning met parkeerplaats;
  • Uitstekende ligging nabij het centrum;
  • Luxe keuken en sanitair;
  • Laminaatvloeren ter overname;
  • Prachtige locatie in een jonge woonwijk;
  • Op het zuiden gelegen achtertuin met houten berging;
  • Volop speelgelegenheid voor de kinderen;
  • Eigen parkeergelegenheid op een nabij gelegen afgesloten binnenterrein;
  • Op korte afstand van scholen, winkels, station NS, sportaccommodaties en uitvalswegen;
  • Alle genoemde maten zijn circa maten;
  • Aan deze informatie kunnen geen rechten worden ontleend.

Voorbehoud

Gunning door verhuurder.

Inkomensnorm

Als je in dit huis wilt wonen moet je bruto (gezamenlijk) maandinkomen inkomen minimaal €5.700,00 zijn, waarbij een eventueel 2e inkomen van je levenspartner voor de helft wordt meegerekend.

Waarborgsom

Bij de start van je huurovereenkomst betaal je een waarborgsom van minimaal één maandhuur. In sommige gevallen kan een hogere waarborgsom gevraagd worden.

Langdurige verhuur

Wij richten ons uitsluitend op langdurige verhuur. Dit betekent dat een eventuele huurovereenkomst altijd wordt afgesloten voor onbepaalde tijd met een minimale periode van drie jaar.

Huurvoorwaarden en benodigde inschrijfdocumentatie

Onze huurvoorwaarden en de benodigde inschrijfdocumenten kunt u bekijken via www.stienstra.nl/huurvoorwaarden/

Overdracht
Huurprijs
€ 1.425
Geliberaliseerd
Ja
Beschikbaar per
16-11-2025
WOZ
€ 410.000
Woning
Kale woning
Oppervlakte en inhoud
Woonoppervlakte
111 m2
Inhoud
400 m3
Bouw
Soort woning
Tussenwoning
Bouwjaar
2012
Energielabel
Energielabel
A
Indeling
Aantal kamers
4
Aantal slaapkamers
3
Aantal woonlagen
3
Buitenruimte
Tuin
Aanwezig
Ligging
Zuid
Beschrijving
Achtertuin, Voortuin
Parkeergelegenheid
Soort parkeren
Op afgesloten terrein
Overig
Cijfer vorige bewoner
9

Vestingwal 47 A, 5664 PC Geldrop op kaart