Tessmanstraat 41, 6135 JP Sittard

Te huur
Jonge en kindvriendelijke omgeving  Moderne afwerking  Energiezuinige woning 
€1.150 per maand

Omschrijving

Jonge en kindvriendelijke omgeving
Moderne afwerking
Energiezuinige woning

Introductie

Wonen in de Tessmanstraat betekent comfortabel wonen in een fijne woning met een ruime tuin en volop groen in de directe omgeving. Naast het wooncomfort liggen alle voorzieningen, zoals scholen, winkels en het centrum van Sittard, op slechts een paar minuten lopen of fietsen van je (misschien wel) nieuwe thuis.

Sittard heeft de afgelopen decennia flink geïnvesteerd in wonen, en de wijk Hoogveld – in het noorden van de stad – is daar een mooi voorbeeld van. Deze wijk staat bekend om zijn hoge kwaliteit, ruime opzet en het open, groene karakter. Bij de ontwikkeling is veel aandacht besteed aan duurzaamheid en milieuvriendelijkheid. Zo is de wijk onder andere uitgerust met een centraal wijkverwarmingssysteem en een regenwaterfiltratiesysteem.

Ben je op zoek naar een ruime woning met een centrale ligging en alle voorzieningen in de buurt? Dan is deze woning zeker een bezichtiging waard!

Begane grond

Via de entree kom je in de hal met het toilet, de meterkast en de toegang tot de woonkamer. De lichte en ruime woonkamer is een fijne plek om te ontspannen en biedt direct toegang tot de tuin. Aan de voorzijde vind je de open keuken, waardoor je tijdens het koken gezellig contact houdt met de rest van het gezin of je bezoek. De trap naar de eerste verdieping bevindt zich ook in de woonkamer, handig en centraal gelegen.

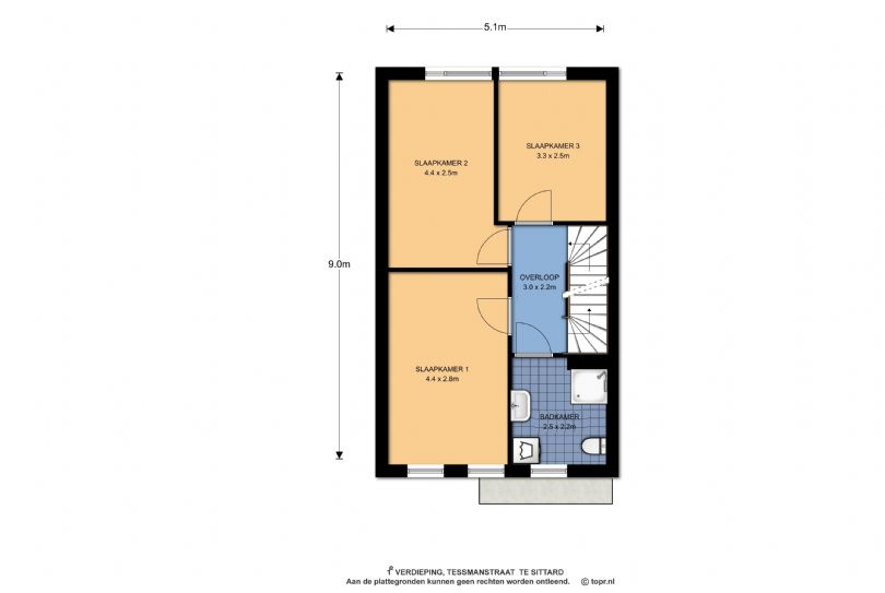
1e Verdieping

Via de overloop bereik je drie comfortabele slaapkamers – perfect om te slapen, werken of studeren. De luxe badkamer straalt rust en modern comfort uit en is uitgerust met een stijlvolle douche, een wastafel en een tweede toilet.

2e Verdieping

Via de vaste trap bereik je de zolder. Deze praktische en functionele ruimte biedt volop mogelijkheden – bijvoorbeeld als extra berging, hobbykamer of werkplek.

Bijzonderheden

  • Jonge en kindvriendelijke omgeving;
  • Moderne afwerking;
  • Energiezuinige woning;
  • Woning beschikt over 8 zonnepanelen;
  • Binnenfoto's zijn van een vergelijkbare woning;
  • Scholen en winkels in de directe nabijheid;
  • Inbraakvertragend hang en sluitwerk;
  • Alle genoemde maten zijn circa maten;
  • Aan deze informatie kunnen geen rechten worden ontleend.

Voorbehoud

Gunning door verhuurder.

Inkomensnorm

Als je in dit huis wilt wonen moet je bruto (gezamenlijk) maandinkomen inkomen minimaal €4.600,00 zijn, waarbij een eventueel 2e inkomen van je levenspartner voor de helft wordt meegerekend.

Waarborgsom

Bij de start van je huurovereenkomst betaal je een waarborgsom van minimaal één maandhuur. In sommige gevallen kan een hogere waarborgsom gevraagd worden.

Langdurige verhuur

Wij richten ons uitsluitend op langdurige verhuur. Dit betekent dat een eventuele huurovereenkomst altijd wordt afgesloten voor onbepaalde tijd met een minimale periode van drie jaar.

Huurvoorwaarden en benodigde inschrijfdocumentatie

Onze huurvoorwaarden en de benodigde inschrijfdocumenten kunt u bekijken via www.stienstra.nl/huurvoorwaarden/

Overdracht
Huurprijs
€ 1.150
Geliberaliseerd
Ja
Beschikbaar per
01-12-2025
WOZ
€ 295.000
Woning
Kale woning
Oppervlakte en inhoud
Woonoppervlakte
117 m2
Perceeloppervlakte
170 m2
Inhoud
280 m3
Bouw
Soort woning
Tussenwoning
Bouwjaar
2007
Energielabel
Energielabel
A++
Indeling
Aantal kamers
4
Aantal slaapkamers
3
Aantal woonlagen
3
Buitenruimte
Tuin
Aanwezig
Ligging
Oost
Beschrijving
Achtertuin, Voortuin
Parkeergelegenheid
Soort parkeren
Op eigen terrein

Tessmanstraat 41, 6135 JP Sittard op kaart