Schaapsdrift 233, 6902 AG Zevenaar

Te koop
Garage, carport en eigen oprit  Ruime tuin van ca. 10 meter breed  Rustig gelegen in woonhof 
€399.000 k.k.

Omschrijving

Garage, carport en eigen oprit
Ruime tuin van ca. 10 meter breed
Rustig gelegen in woonhof

Introductie

Aan de rand van Zevenaar in de wijk "De Horst" ligt deze netjes onderhouden hoekwoning. De woning is o.a. voorzien van een royale tuin en 4 slaapkamers. De aangrenzende ruime garage en een carport/eigen oprit komen we niet vaak tegen.

De buurt is van alle gemakken voorzien, zo liggen supermarkten, sportvelden, scholen en de woonboulevard op loop- en fietsafstand. Deze faciliteiten in combinatie met de vele groenvoorzieningen en speelgelegenheden maken deze omgeving zeer kindvriendelijk. De woning is uitermate geschikt voor de starters op de woningmarkt.

Zevenaar is een gezellige stad met verrassend veel voorzieningen. Voor een leuke middag shoppen of een hapje of drankje kun je terecht in een van de vele winkels, restaurants en cafés. Maar ook het Musiater of het Liemers Museum zijn een bezoekje meer dan waard.

Ondanks dat de woning in een rustige wijk ligt, ben je binnen enkele minuten op de uitvalswegen richting Arnhem (A12) en Doetinchem (A18). Kortom ligt de woning ideaal voor het woon- en werkverkeer.

Ben je op zoek naar een woning die is gelegen in een rustige buurt, waar alle voorzieningen op een steenworp afstand liggen? Dan is dit wellicht het huis waar je naar op zoek bent.

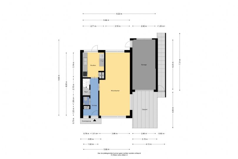
Begane grond

Via de hal met meterkast, toiletruimte, trapkast en de trapopgang naar de eerste verdieping bereik je de ruime woonkamer met veel lichtinval, vaste kast en de ruime keuken. De begane grond is voorzien van een laminaatvloer. Via de tuin is de garage bereikbaar. Voor de garage is een oprit en carport aanwezig.

1e Verdieping

Via de overloop kom je in de 3 slaapkamers en de badkamer met inloopdouche, wastafel en 2e toilet.

2e Verdieping

De zolderverdieping is met een vaste trap te bereiken. Hier is tevens de opstelling van de cv-installatie (eigendom) gerealiseerd. Verder meer dan genoeg bergruimte en een ruime 4e slaapkamer met dakkapel.

Bijzonderheden

  • Woning met verrassend veel ruimte;
  • Energielabel C;
  • 4 slaapkamers;
  • Grote tuin met veel privacy;
  • Praktische garage en carport;
  • Centrale ligging in rustig woonerf;
  • Speelvoorzieningen in de nabijheid;
  • Alle genoemde maten zijn obv het meetrapport;
  • Aan deze informatie kunnen geen rechten worden ontleend.

Notaris

Voor de akte van levering is een projectnotaris van toepassing.

Aanvullende informatie

Deze woning wordt aangeboden in samenwerking met Huysshop Internetmakelaar.

Overdracht
Koopprijs
€ 399.000
Beschikbaar per
26-02-2026
WOZ
€ 366.000
Woning
Kale woning met vloerafwerking
Oppervlakte en inhoud
Woonoppervlakte
120 m2
Perceeloppervlakte
238 m2
Inhoud
492 m3
Bouw
Soort woning
Hoekwoning
Bouwjaar
1972
Energielabel
Energielabel
C
Indeling
Aantal kamers
5
Aantal slaapkamers
4
Aantal woonlagen
3
Buitenruimte
Gebouwgebonden
24 m2
Tuin
Aanwezig
Ligging
Noordoost
Beschrijving
Achtertuin, Voortuin, Zijtuin, Zonneterras
Parkeergelegenheid
Soort parkeren
Op eigen terrein
Overig
Cijfer vorige bewoner
9

Schaapsdrift 233, 6902 AG Zevenaar op kaart