Lupinenstraat 54, 6942 VC Didam

Te koop
Prima starterswoning  Nette keuken en badkamer  Schilderwerk buitenzijde 2025 
€347.500 k.k.

Omschrijving

Prima starterswoning
Nette keuken en badkamer
Schilderwerk buitenzijde 2025

Introductie

Deze ruime hoekwoning ligt in een kindvriendelijke en nette wijk. Jouw rust is gegarandeerd terwijl de winkels en scholen slechts een paar minuten verwijderd zijn. Didam heeft een prettig dorps karakter.

De woning beschikt onder andere over 4 slaapkamers en een mooie zonnige achtertuin op het zuiden, een vrijstaande stenen berging en een eigen achterom. Je woont gunstig nabij het centrum, sportaccommodaties en recreatiegebied 'de Nevelhorst', waar je kunt genieten van een fijne wandeling of fietstocht. Bovendien zijn de verbindingen met de autosnelwegen A12 (Arnhem), A18 (Doetinchem) en A3 (Duitsland) binnen enkele autominuten bereikbaar.

Ben je op zoek naar een leuke gezinswoning met een centrale ligging en een prettige woonomgeving? Dan nodigen we je graag uit om deze woning te bezichtigen!

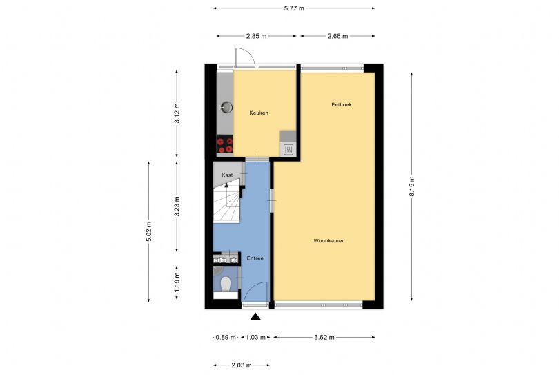
Begane grond

Via de entree kom je in de hal met toilet en een provisiekast. Vervolgens ga je naar de gesloten keuken met een nette keuken, voorzien van diverse inbouwapparatuur. De ruime en lichte woonkamer heeft een fijne lichtinval en is voorzien van een parketvloer.
De ruime tuin ligt op het zuiden en beschikt over een terras. Achterom vind je een stenen berging die extra opslagruimte biedt voor onder andere je fiets(en).

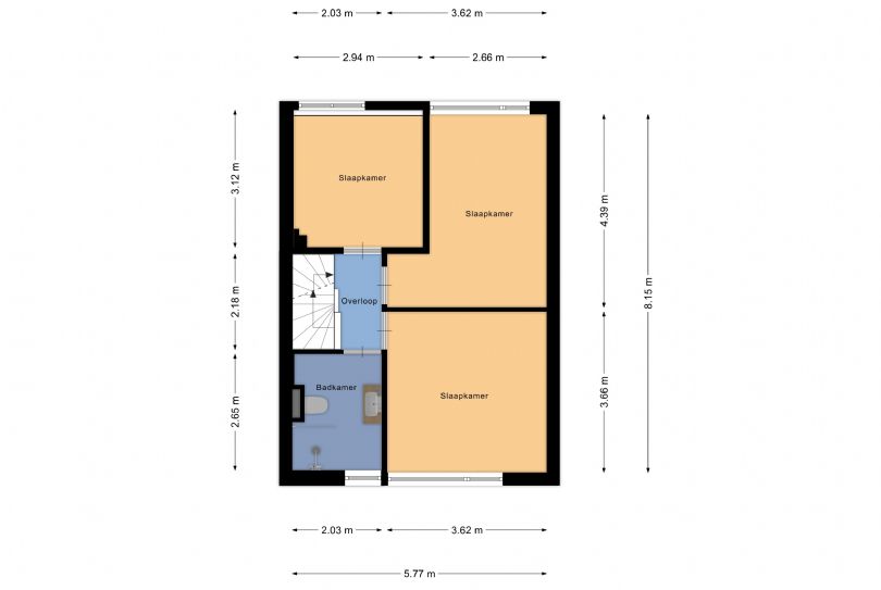
1e Verdieping

Via de overloop bereik je de 3 slaapkamers en een nette badkamer met douche, toilet, wastafel en wasmachineaansluiting.

2e Verdieping

Via een vaste trap bereik je de zolderetage met voorzolder, cv-opstelling (2015, eigendom) en een ruime 4e slaapkamer.

Bijzonderheden

  • Prima starterswoning;
  • 4 Slaapkamers;
  • Zonnige achtertuin (op het zuiden);
  • Schilderwerk buitenzijde uitgevoerd in 2025;
  • Alle genoemde maten zijn circa maten;
  • Aan deze informatie kunnen geen rechten worden ontleend.

Notaris

Voor de akte van levering is een projectnotaris van toepassing.

Aanvullende informatie

Deze woning wordt aangeboden in samenwerking met Huysshop Internetmakelaar.

Overdracht
Koopprijs
€ 347.500
Beschikbaar per
13-11-2025
WOZ
€ 243.000
Woning
Gestoffeerde woning
Oppervlakte en inhoud
Woonoppervlakte
115 m2
Perceeloppervlakte
213 m2
Inhoud
407 m3
Bouw
Soort woning
Hoekwoning
Bouwjaar
1971
Energielabel
Energielabel
C
Indeling
Aantal kamers
5
Aantal slaapkamers
4
Aantal woonlagen
3
Buitenruimte
Tuin
Aanwezig
Ligging
Zuid
Beschrijving
Achtertuin, Voortuin, Zijtuin, Zonneterras
Parkeergelegenheid
Soort parkeren
Openbaar parkeren
Overig
Cijfer vorige bewoner
8

Lupinenstraat 54, 6942 VC Didam op kaart