Henriette Roland Holstweg 16, 8448 RV Heerenveen

Te huur
Riant herenhuis in Skoatterwâld  Moderne badkamer en keuken  Energiezuinig, energielabel A-plus 
€1.295 per maand

Omschrijving

Riant herenhuis in Skoatterwâld
Moderne badkamer en keuken
Energiezuinig, energielabel A-plus

Introductie

Wonen in rust in een fraaie woonwijk, dichtbij het bruisende centrum en bomenrijke singelde uitvalswegen. Dit riante herenhuis is luxe afgewerkt met een moderne keukenopstelling inclusief keukenapparatuur en een compleet ingerichte badkamer met douche, ligbad, wastafel en 2e toilet. De woning voldoet aan de laatste eisen op het gebied van isolatie hetgeen resulteert in lage energiekosten!

De in 2011 gerealiseerde woonwijk Skoatterwâld ligt aan de rand van Heerenveen. Drie inspirerende buitenplaatsen bepalen het beeld in Skoatterwâld. De ene kenmerkt zich door de harmonieuze inbedding in het groen, de ander ademt de sfeer van een Engels landschap. De derde buitenplaats is gebouwd in typisch Franse stijl. Dat alles temidden van statige lanen, waterpartijen, frisgroene weiden en parkbossen.

Wie wandelt, jogt of fietst door Skoatterwald voelt zich één met de omgeving.

Kortom, luxe wonen in een prachtige omgeving!

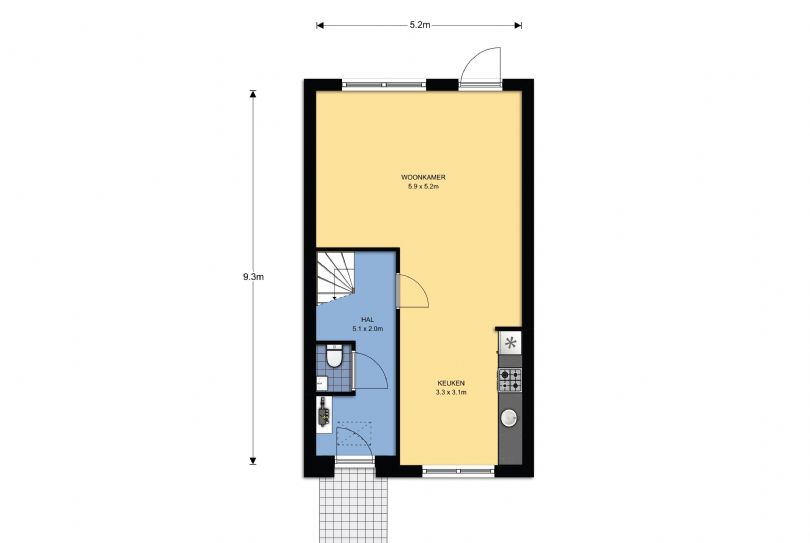
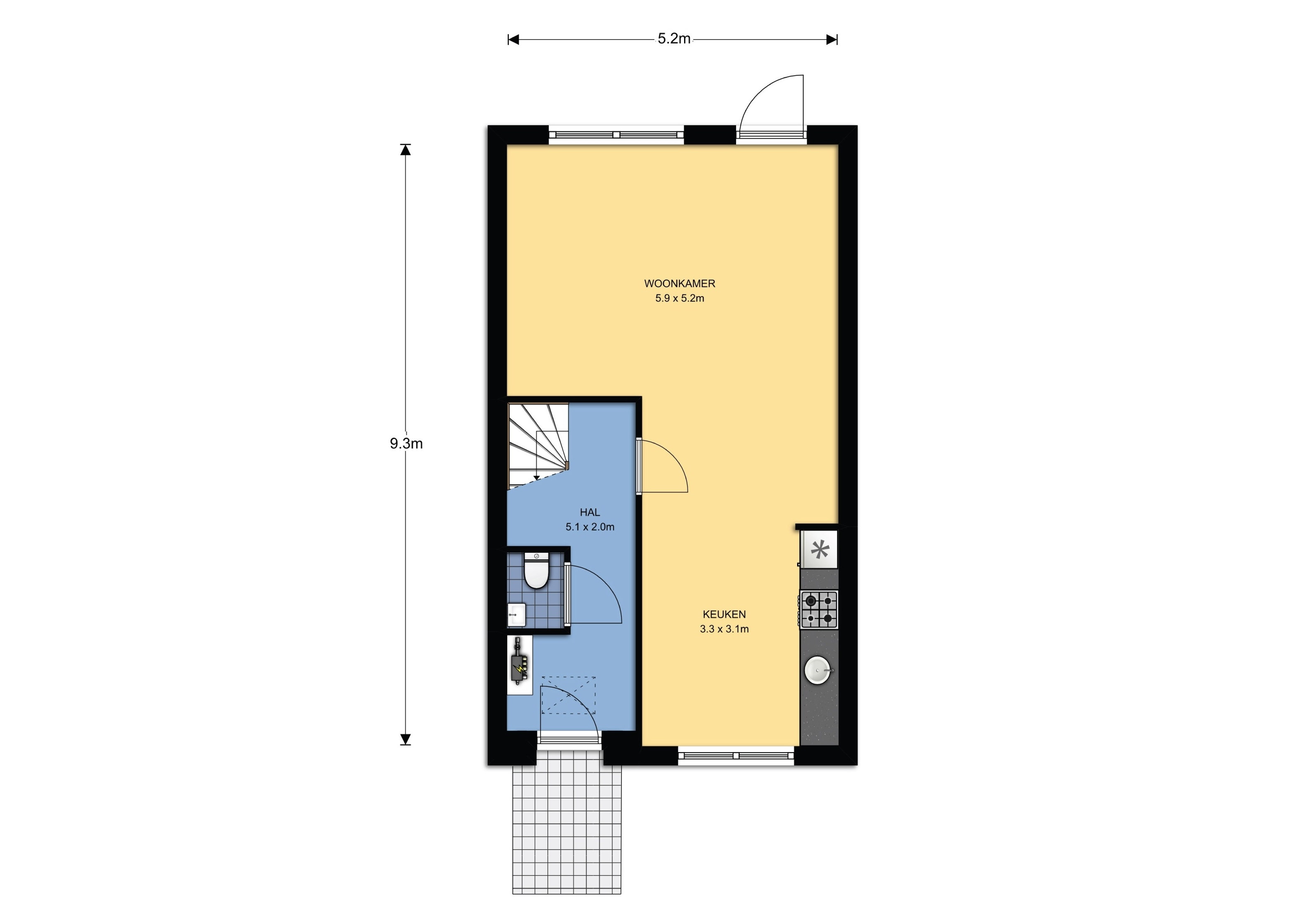
Begane grond

Ruime hal met meterkast, een moderne toiletruimte, trapkast en de trapopgang naar de 1e verdieping. De ruime woonkamer biedt toegang tot het terras en de zonnige achtertuin. Hier is het heerlijk vertoeven in de zonnige dagen van het jaar. De tuin is met een draad hekwerk omsloten en voorzien van een tuinpoort, hetgeen veel privacy biedt.

De open, moderne en luxe afgewerkte keuken is voorzien van een vaatwasser, koelkast, combimagnetron, 4 pits gas kookplaat en een RVS afzuigkap.

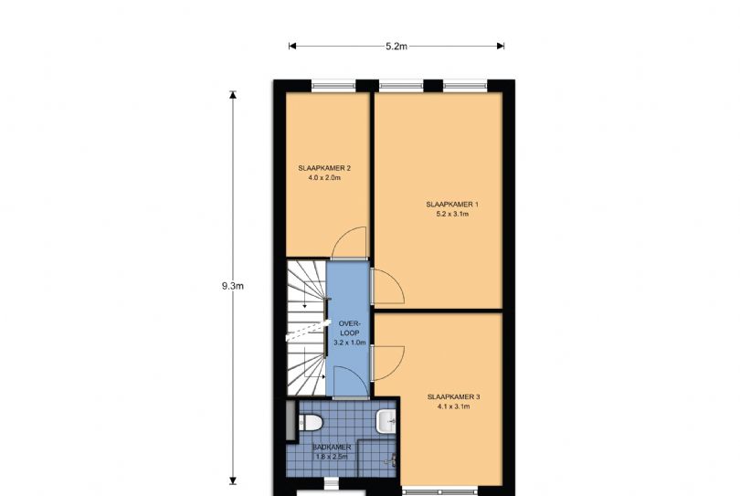
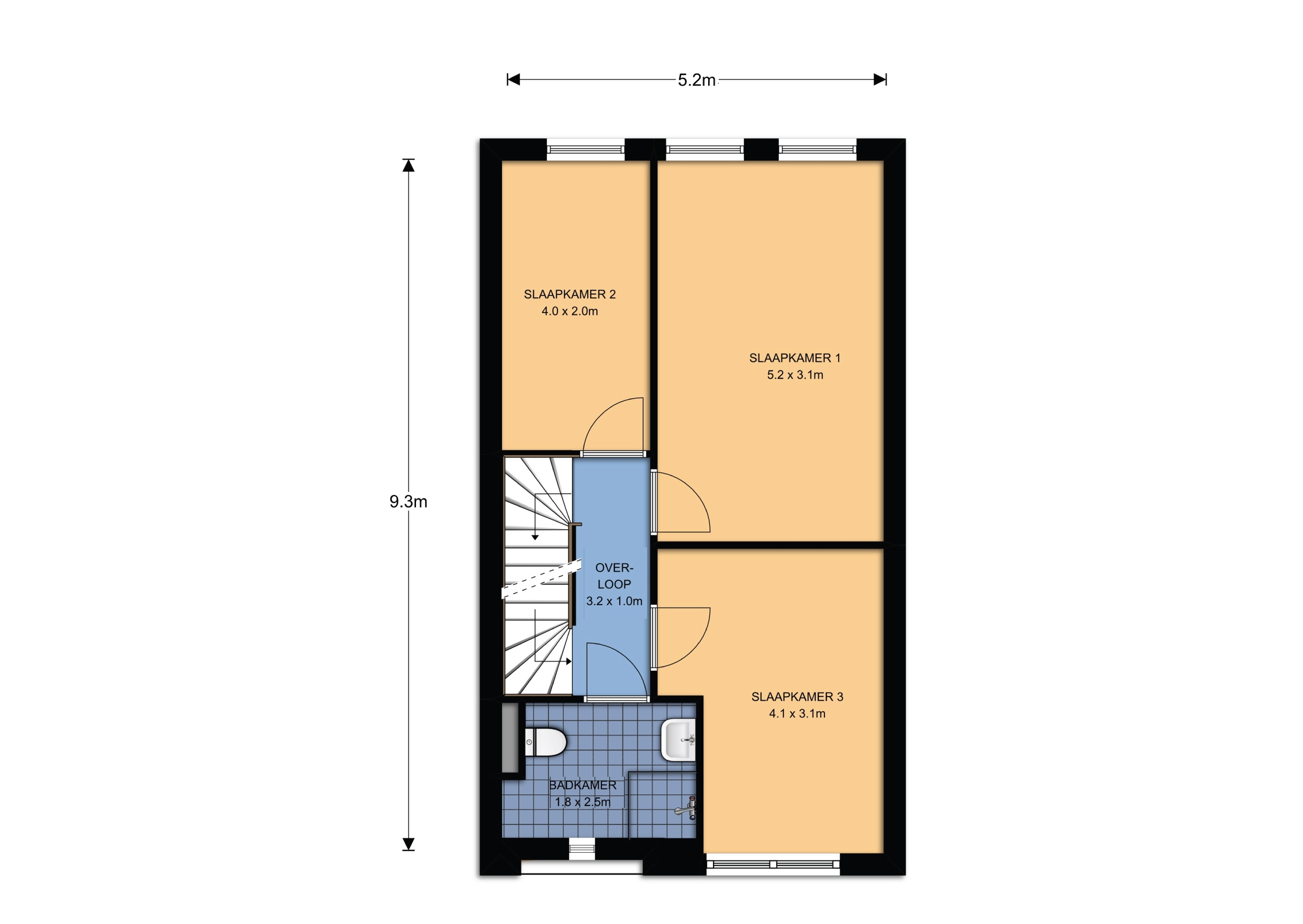
1e Verdieping

Op de overloop vind je drie royale slaapkamers en een modern afgewerkte badkamer. Deze badkamer is uitgerust met een ruime douche, een tweede toilet en een stijlvolle wastafel. Alles is praktisch ingedeeld en biedt volop comfort voor dagelijks gebruik.

2e Verdieping

Via de vaste trap kom je op de tweede verdieping. Hier bevindt zich een royale, multifunctionele ruimte die je eenvoudig kunt omtoveren tot een vierde slaapkamer, werkkamer of hobbyruimte. Daarnaast is er een aparte ruimte ingericht voor de cv-opstelling en de aansluiting voor je wasmachine en droger. Een praktische en ruime verdieping met volop mogelijkheden.

Bijzonderheden

  • Luxe afgewerkt;
  • Nette badkamer en keuken;
  • Energiezuinig, energielabel A
  • plus;
  • De zonnige achtertuin is gelegen op het oosten en wordt geheel omsloten door een draaghekwerk met tuinpoort;
  • Bouwjaar 2011;
  • Woonoppervlak 121m2;
  • Het kan zijn dat er overname zaken van toepassing zijn;
  • Alle genoemde maten zijn circa maten;
  • Aan deze informatie kunnen geen rechten worden ontleend.

Voorbehoud

Bij meerdere geschikte kandidaten zal toewijzing via loting plaatsvinden.

Inkomensnorm

Als je in dit huis wilt wonen moet je bruto (gezamenlijk) maandinkomen minimaal €5.180,00 zijn, waarbij een eventueel 2e inkomen van je levenspartner voor de helft wordt meegerekend.

Waarborgsom

Bij de start van je huurovereenkomst betaal je een waarborgsom van minimaal één maandhuur. In sommige gevallen kan een hogere waarborgsom gevraagd worden.

Zonnepanelen

De woning is voorzien van zonnepanelen, waardoor je kunt profiteren van een lagere energierekening en bijdraagt aan een duurzamer energiegebruik.

Langdurige verhuur

Wij richten ons uitsluitend op langdurige verhuur. Dit betekent dat een eventuele huurovereenkomst altijd wordt afgesloten voor onbepaalde tijd met een minimale periode van drie jaar.

Huurvoorwaarden en benodigde inschrijfdocumentatie

Onze huurvoorwaarden en de benodigde inschrijfdocumenten kunt u bekijken via www.stienstra.nl/huurvoorwaarden/

Overdracht
Huurprijs
€ 1.295
Geliberaliseerd
Ja
Beschikbaar per
01-05-2026
WOZ
€ 368.000
Woning
Kale woning
Oppervlakte en inhoud
Woonoppervlakte
122 m2
Inhoud
300 m3
Bouw
Soort woning
Tussenwoning
Bouwjaar
2011
Energielabel
Energielabel
A+
Indeling
Aantal kamers
4
Aantal slaapkamers
3
Aantal woonlagen
3
Buitenruimte
Tuin
Aanwezig
Ligging
Noordoost
Beschrijving
Achtertuin, Voortuin
Parkeergelegenheid
Soort parkeren
Openbaar parkeren
Overig
Cijfer vorige bewoner
8

Henriette Roland Holstweg 16, 8448 RV Heerenveen op kaart