Haverkampweg 35, 8084 BR 't Harde

Te koop
Kluswoning met grote tuin  Nette badkamer en keuken  Prima woonlocatie 
€317.500 k.k.

Omschrijving

Kluswoning met grote tuin
Nette badkamer en keuken
Prima woonlocatie

Introductie

Ben je op zoek naar een leuke starterswoning die je naar eigen smaak en woonwensen kunt inrichten? Laat je dan verrassen door deze verrassende hoekwoning met veel lichtinval en veel mogelijkheden. De woning beschikt o.a. over een grote achtertuin met achterom en stenen berging, 3 slaapkamers en een ruime woonkamer.

De woning ligt in een bosrijke woonomgeving en in de nabijheid van het centrum met voorzieningen zoals winkels, scholen, restaurants, openbaar vervoer en uitvalswegen (A28). Voor recreatie en ontspanning kunt u terecht bij de Doornspijkse Heide en de Broekse Heide voor mooie fiets- en wandelroutes door de Veluwe! De water(sport) liefhebber kan fijn vertoeven aan of op het Veluwemeer.

Kortom een fijne gezinswoning met een centrale ligging.

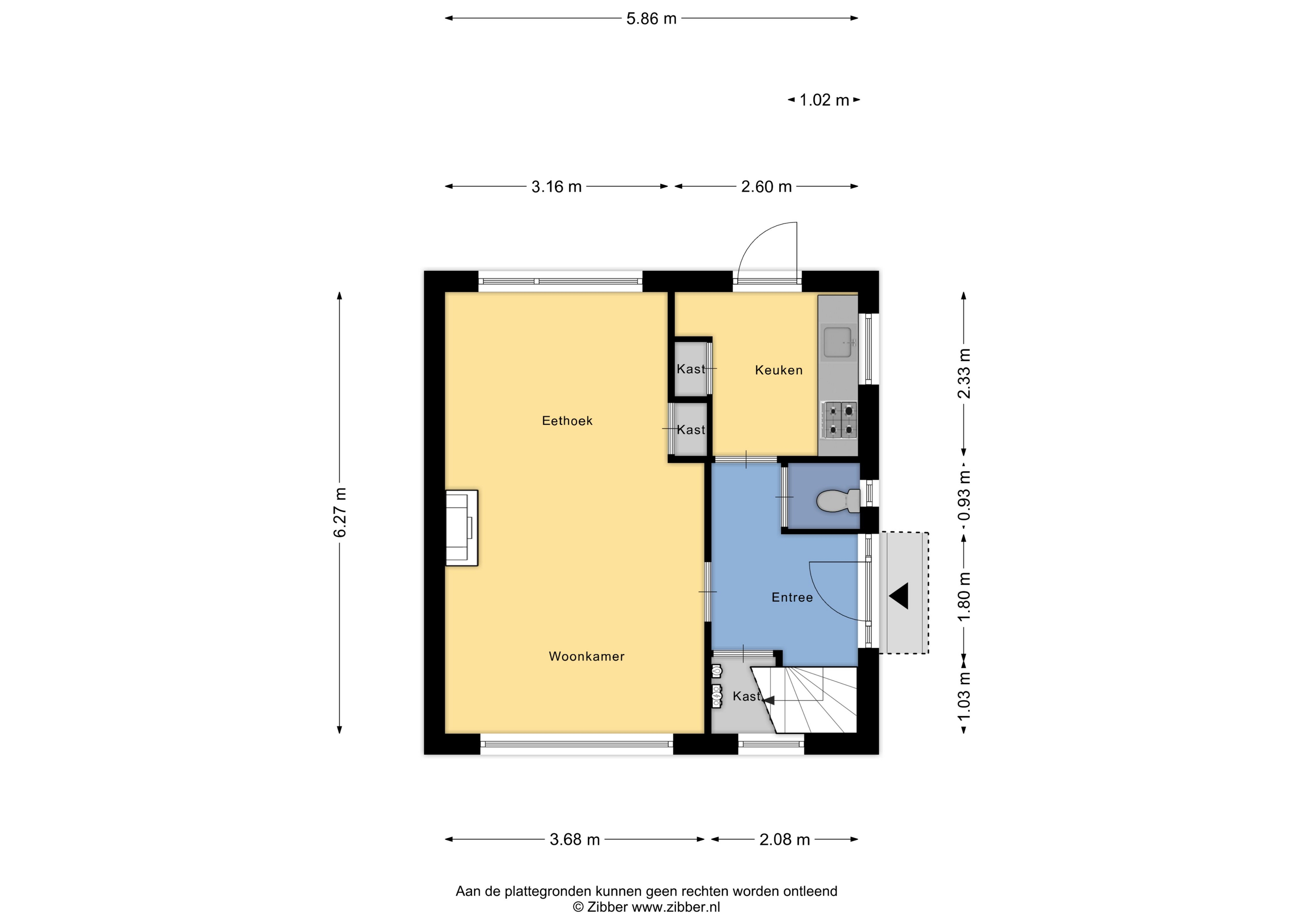
Begane grond

Vanuit de hal, waar je ook de toiletruimte en trapopgang naar de eerste verdieping vindt, stap je binnen in de lichte doorzonwoonkamer. Aan de achterzijde bevindt zich de gesloten keuken, voorzien van een net keukenblok.

De keuken biedt directe toegang tot de royale - opgeschoonde - achtertuin op het zuidwesten. De tuin is volledig opgeschoond en klaar om hier een groene oase van rust te creeeren. Misschien wilt u zelfs de berging verplaatsen of een grote buitenkeuken plaatsen. De keuze is aan u.

1e Verdieping

Via de overloop bereik je drie fijne slaapkamers, elk met voldoende ruimte en lichtinval. De nagenoeg nieuwe badkamer is voorzien van een douche en een wastafel.

2e Verdieping

Via een vlizotrap bereik je de tweede verdieping, waar je beschikt over veel bergruimte. Deze zolder biedt volop mogelijkheden, bijvoorbeeld voor het creëren van een extra slaapkamer, hobbyruimte of thuiswerkplek.

Bijzonderheden

  • Kluswoning met prima basis;
  • Moderne badkamer;
  • Tuin is opgeschoond en geëgaliseerd;
  • Schilderwerk binnenzijde 2025;
  • Fijne woonomgeving nabij de bossen;
  • 3 slaapkamers;
  • Nabij winkels, scholen, restaurants, openbaar vervoer en uitvalswegen (A28);
  • Nabij de Doornspijkse Heide, de Broekse Heide en het Veluwemeer;
  • Het centrum van Zwolle ligt op ongeveer 15 minuten rijden;
  • Alle maten zijn ter indicatie, maar een meerrapport is aanwezig;
  • Aan deze informatie kunnen geen rechten worden ontleend.

Notaris

Projectnotaris.

Aanvullende informatie

Deze woning wordt aangeboden in samenwerking met Huysshop Internetmakelaar.

Overdracht
Koopprijs
€ 317.500
Beschikbaar per
27-10-2025
WOZ
€ 307.000
Woning
Kale woning
Oppervlakte en inhoud
Woonoppervlakte
74 m2
Perceeloppervlakte
286 m2
Inhoud
301 m3
Bouw
Soort woning
Hoekwoning
Bouwjaar
1960
Energielabel
Energielabel
E
Indeling
Aantal kamers
4
Aantal slaapkamers
3
Aantal woonlagen
3
Buitenruimte
Gebouwgebonden
1 m2
Tuin
Aanwezig
Ligging
Zuidoost
Beschrijving
Achtertuin, Voortuin
Parkeergelegenheid
Soort parkeren
Openbaar parkeren

Haverkampweg 35, 8084 BR 't Harde op kaart