Grote Markt 24 4, 9712 HV Groningen

Te koop
Royaal 3-kamer appartement met balkon  Luxe keuken met dubbel werkblad  Hartje centrum, wonen daar waar Groningen leeft! 
€515.000 k.k.

Omschrijving

Royaal 3-kamer appartement met balkon
Luxe keuken met dubbel werkblad
Hartje centrum, wonen daar waar Groningen leeft!

Introductie

Dit stijlvolle appartement bevindt zich in een keurig complex, direct naast de iconische Martini Toren en beschikt het over een moderne, volledig uitgeruste keuken, 2 slaapkamers, een praktische badkamer en veel bergruimte.

Dankzij de centrale ligging heb je alle voorzieningen binnen handbereik: winkels, parken en alle andere hoogtepunten die Groningen te bieden heeft. Groningen staat bekend als de beste binnenstad, de leukste studentenstad en de meest fietsvriendelijke stad van Nederland. Of je nu een dagje uit bent, als toerist op verkenning gaat of lekker wilt shoppen, Groningen biedt alles wat je van een stad mag verwachten en is het culturele hart van de provincie.

In Groningen is altijd iets te doen. Van festivals als Eurosonic, Noorderslag en Noorderzon, tot optredens van geweldige bands in Vera of voorstellingen in de Stadsschouwburg. De stad heeft een enorm cultuuraanbod. De horeca kent geen sluitingstijd en biedt een grote diversiteit. De vele uitgaansgelegenheden maken Groningen tot een perfecte plek voor een avondje stappen. Met een ruim aanbod aan restaurants vind je altijd een plek die bij jouw smaak past.

Parkeermogelijkheden zijn beschikbaar via externe aanbieders, met optionele abonnementen op slechts 300 meter afstand, o.a. bij Het Forum.

Ben jij op zoek naar een appartement op een toplocatie in Groningen? Dan is ons appartement absoluut een bezichtiging waard!

Omgeving

De Grote Markt is het kloppende hart van Groningen. Hier komen cultuur, historie en gezelligheid samen. Geniet van uitzicht op de Martinitoren, wandel naar het Forum voor een film of expositie, en strijk neer op een van de vele terrassen. Alles wat Groningen te bieden heeft ligt letterlijk aan je voeten. Of sla het gade vanaf het balkon! Er is altijd wat te beleven.

Parterre

In de parterre bevindt zich de entree met brievenbussen, bellentableau, trappenhuis en lift. Hier is ook een privé-berging.

2e Verdieping

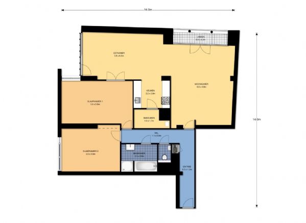
Stap via de hal/gang binnen in de ruime, lichte woonkamer met directe toegang tot het balkon. De woning beschikt over een stijlvolle en moderne keuken, compleet met een koelkast, combimagnetron, 5-pits inductiekookplaat, vaatwasser en een strakke RVS recirculatiekap. Daarnaast vind je in het appartement een handige bijkeuken/berging, een ruime, comfortabele ouderslaapkamer, een apart toilet en een ruime badkamer met ligbad, wastafel en een separate douche. Er is een ruime 2e slaapkamer aanwezig.

Bijzonderheden

  • Fantastisch en uniek uitzicht;
  • Ruime woonkamer;
  • 2 Slaapkamers;
  • Hartje centrum;
  • Balkon met uitzicht op de Grote Markt;
  • Ruime woonkamer;
  • Het complex is voorzien van een lift;
  • Eigen CV ketel;
  • Onder het complex bevindt zich een afgesloten fietsenstalling ;
  • Ruime berging;
  • Alle genoemde maten zijn circa maten;
  • Aan deze informatie kunnen geen rechten worden ontleend.

Notaris

Voor de overdracht is een projectnotaris van toepassing.

VVE - bijdrage

De bijdrage aan de Vereniging van Eigenaren (VvE) bedraagt € 441,71 per maand. Dit zorgt voor een goede basis om de meerjaren-onderhoudsplanning (MJOP) uit te kunnen voeren.
Indien gewenst geven wij graag inzage in de laatste notulen, alsmede de MJOP.
(mail: kcc@stienstra.nl)

Aanvullende informatie

Deze woning wordt aangeboden in samenwerking met Huysshop Internetmakelaar.

Overdracht
Koopprijs
€ 515.000
Beschikbaar per
16-01-2026
WOZ
€ 428.000
Woning
Gestoffeerde woning
Oppervlakte en inhoud
Woonoppervlakte
123 m2
Inhoud
406 m3
Bouw
Soort woning
Appartement
Bouwjaar
1996
Energielabel
Energielabel
A
Indeling
Aantal kamers
3
Aantal slaapkamers
2
Aantal woonlagen
1
Lift
Aanwezig
Buitenruimte
Gebouwgebonden
3 m2
Parkeergelegenheid
Soort parkeren
Betaald parkeren
Overig
Cijfer vorige bewoner
9

Grote Markt 24 4, 9712 HV Groningen op kaart

Appartement

Plattegrond