Grote Markt 24 3, 9712 HV Groningen

Te koop
Toplocatie nabij Martini Toren  Ruime woonkamer  Grote berging 
€395.000 k.k.

Omschrijving

Toplocatie nabij Martini Toren
Ruime woonkamer
Grote berging

Introductie

Wonen in het hart van Groningen!

Midden in het bruisende centrum van Groningen, direct aan de voet van de iconische Martinitoren, vind je dit nette appartement. Gelegen op de eerste verdieping biedt het jou een stijlvolle leefomgeving met een keurige keuken, nette badkamer en een ruime, lichte woonkamer.

De ligging is simpelweg fantastisch: alle voorzieningen liggen binnen handbereik. Van gezellige winkels en sfeervolle restaurants tot terrasjes, parken en alles wat Groningen zo uniek maakt. Deze stad staat bekend als dé beste binnenstad, de leukste studentenstad én de meest fietsvriendelijke stad van Nederland. Hier geniet je van een dynamische omgeving die dagjesmensen, toeristen en bewoners alles biedt wat je van een stad mag verwachten.

Ben jij op zoek naar een appartement op een absolute toplocatie in Groningen? Dan is dit jouw kans!

Souterrain

Algemene fietsenstalling en een privé berging.

Parterre

Entree, intercominstallatie met brievenbussen en toegang tot de lift.

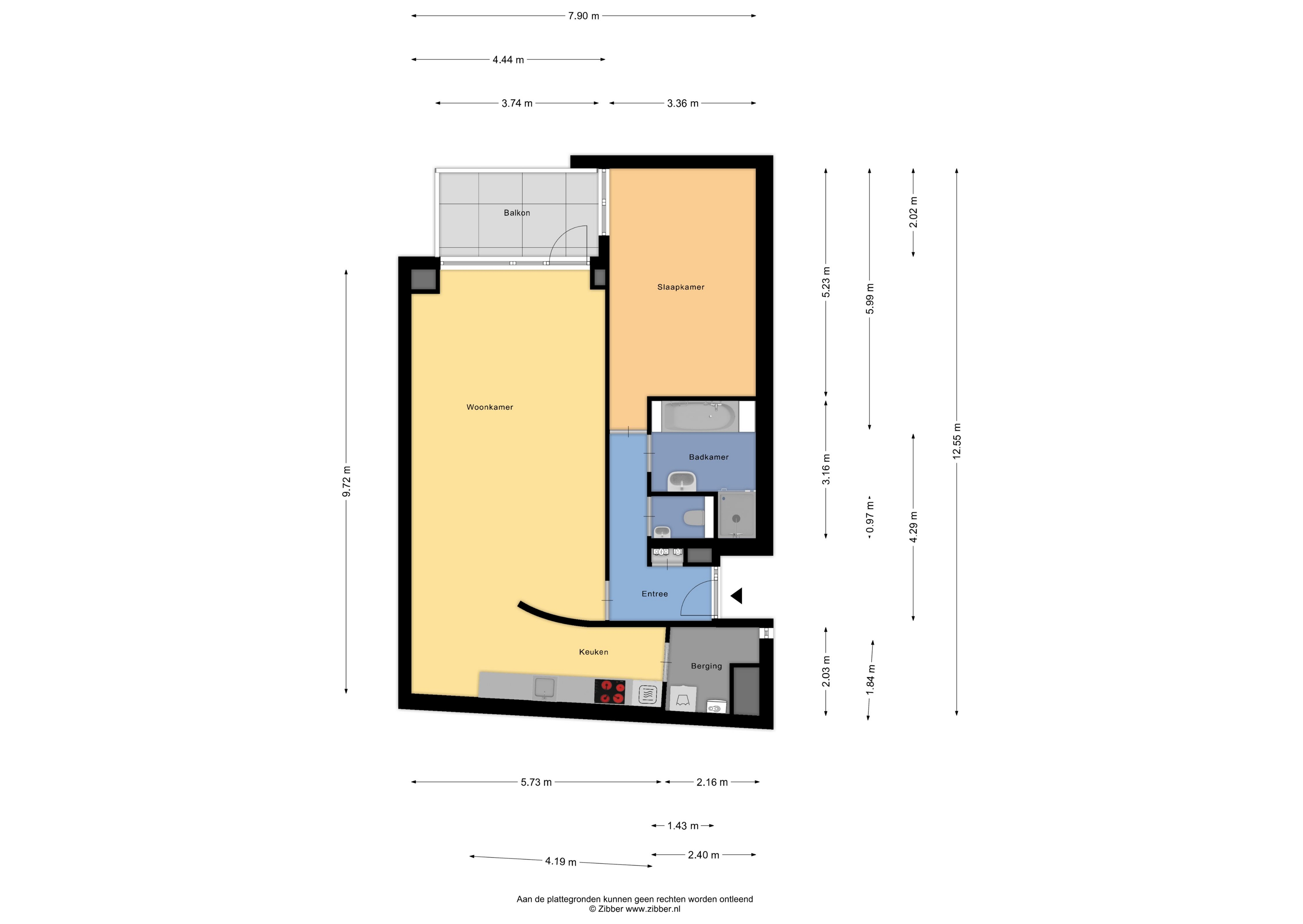
1e Verdieping

Via de hal bereik je de royale slaapkamer, de toiletruimte en de modern afgewerkte badkamer. De ruime woonkamer, voorzien van een laminaatvloer, geeft toegang tot het balkon waar je kunt genieten van het uitzicht op de iconische Martinitoren.
De keuken is ruim en compleet, zoals een inductiekookplaat, combi-oven, wasemkap, koelkast en vaatwasser. Het geheel is afgewerkt met een granieten werkblad. Daarnaast beschikt het appartement over een praktische bijkeuken/berging en een ruime badkamer met ligbad, wastafel en separate douche.
Dit appartement biedt één royale slaapkamer en een balkon met een uniek uitzicht – een perfecte combinatie van comfort en stedelijke charme.

Bijzonderheden

  • Toplocatie, naast de Martini Toren;
  • Autoluwe omgeving;
  • Nette keuken met inbouwapparatuur;
  • Ruime woonkamer en slaapkamer;
  • Het complex is voorzien van een lift;
  • Onder het complex bevindt zich een afgesloten fietsenstalling;
  • Ruime berging;
  • Parkeren via vergunning of privaat (Forum);
  • Er is een meetrapport aanwezig, maten zijn hieruit overgenomen;
  • Aan deze informatie kunnen geen rechten worden ontleend.

Notaris

Voor de akte van levering is een projectnotaris van toepassing.

VVE - bijdrage

De bijdrage aan de Vereniging van Eigenaren is vastgesteld op € 329,17 per maand.

Aanvullende informatie

Deze woning wordt aangeboden in samenwerking met Huysshop Internetmakelaar.

Overdracht
Koopprijs
€ 395.000
Beschikbaar per
30-01-2026
WOZ
€ 339.000
Woning
Kale woning met vloerafwerking
Oppervlakte en inhoud
Woonoppervlakte
84 m2
Inhoud
277 m3
Bouw
Soort woning
Appartement
Bouwjaar
1996
Energielabel
Energielabel
A
Indeling
Aantal kamers
2
Aantal slaapkamers
1
Aantal woonlagen
1
Lift
Aanwezig
Buitenruimte
Gebouwgebonden
8 m2
Parkeergelegenheid
Soort parkeren
Betaald parkeren

Grote Markt 24 3, 9712 HV Groningen op kaart