Botter 36 13, 8243 KS Lelystad

Te koop
Extra ruime eindwoning  Royale tuin op het zuidoosten  In de geliefde wijk Havendiep 
€445.000 k.k.

Omschrijving

Extra ruime eindwoning
Royale tuin op het zuidoosten
In de geliefde wijk Havendiep

Introductie

In de zeer geliefde woonwijk Havendiep staat jouw ruime eindwoning met onder andere een extra ruime woonkamer en grote achtertuin, 4 slaapkamers, een royale zolderverdieping en een badkamer. De badkamer, keuken en toiletruimte zijn toe aan vernieuwing. Ideaal, want zo kun je deze helemaal naar jouw eigen smaak en woonwensen moderniseren.
Je woont hier op een uitstekende locatie in Lelystad. Op loop- en fietsafstand vind je onder andere het station, theater, ziekenhuis en Batavia Stad Fashion Outlet. In de buurt zijn er volop cafés, restaurants en diverse sportfaciliteiten. Voor je dagelijkse boodschappen kun je terecht bij de supermarkt om de hoek. Even eropuit? Binnen no-time zit je op de provinciale wegen en de snelweg (A6).
Kortom, een fijne gezinswoning met volop mogelijkheden!

Begane grond

Je komt binnen via de entree met meterkast, trapopgang en toiletruimte. Vanuit de hal stap je de extra ruime woonkamer in, die dankzij de grote raampartijen heerlijk licht is. De woonkamer grenst aan een halfopen keuken met een eenvoudig keukenblok – ideaal om helemaal naar jouw smaak te vernieuwen.
Via de woonkamer heb je toegang tot de zeer royale en zonnige achtertuin op het zuidoosten.
Aan de voorzijde van de woning is een praktische stenen berging: handig voor de fiets of tuinspullen.

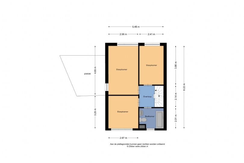
1e Verdieping

Via de overloop kom je bij drie slaapkamers en de badkamer. Die is uitgerust met een bad, wastafel en een tweede toilet – praktisch en functioneel, met ruimte om het helemaal naar jouw wensen te vernieuwen.

2e Verdieping

De zolderverdieping is bereikbaar via een vaste trap. Hier vind je een ruime zolder met volop bergruimte, de cv-opstelling en aansluiting voor je wasmachine. Wil je extra leefruimte? Dan kun je hier eenvoudig de vierde slaapkamer realiseren.

Bijzonderheden

  • Ruime woning met achtertuin op het zuidoosten;
  • In de geliefde wijk Havendiep;
  • 4 slaapkamers;
  • Ruime zolderverdieping;
  • Centrale ligging;
  • Kindvriendelijke buurt;
  • Nabij Batavia Stad Fashion Outlet, supermarkten, cafés en restaurants;
  • Alle genoemde maten zijn circa maten;
  • Aan deze informatie kunnen geen rechten worden ontleend.

Notaris

Projectnotaris.

Aanvullende informatie

Deze woning wordt aangeboden in samenwerking met Huysshop Internetmakelaar.

Overdracht
Koopprijs
€ 445.000
Beschikbaar per
25-03-2026
WOZ
€ 460.000
Woning
Kale woning
Oppervlakte en inhoud
Woonoppervlakte
140 m2
Perceeloppervlakte
242 m2
Inhoud
497.61 m3
Bouw
Soort woning
Hoekwoning
Bouwjaar
1981
Energielabel
Energielabel
C
Indeling
Aantal kamers
5
Aantal slaapkamers
4
Aantal woonlagen
3
Buitenruimte
Tuin
Aanwezig
Ligging
Zuidoost
Beschrijving
Achtertuin, Voortuin
Parkeergelegenheid
Soort parkeren
Openbaar parkeren
Overig
Cijfer vorige bewoner
10

Botter 36 13, 8243 KS Lelystad op kaart