Amstelkade 137 -1, 1078 AT Amsterdam

Te koop
Eeuwig durend afgekochte erfpacht  Licht 3 kamer appartement van 101m2  Prachtig uitzicht op het Amstelkanaal 
€885.000 k.k.

Omschrijving

Eeuwig durend afgekochte erfpacht
Licht 3 kamer appartement van 101m2
Prachtig uitzicht op het Amstelkanaal

Introductie

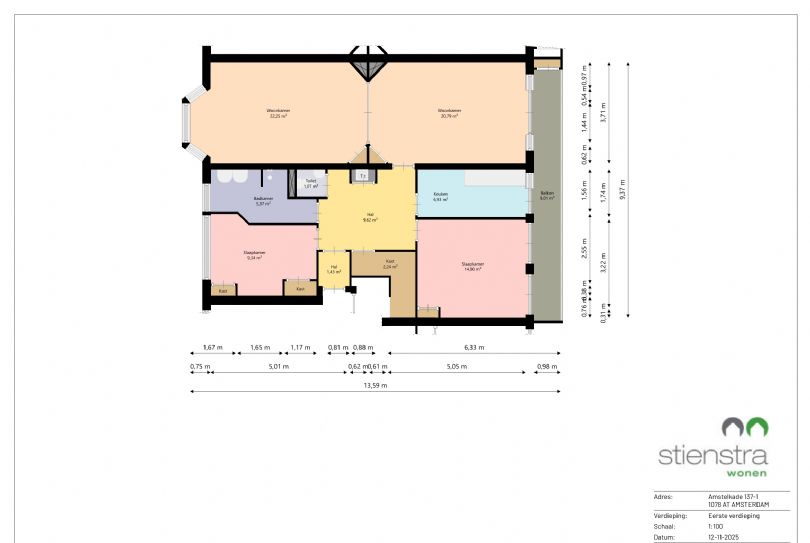
Op een absolute toplocatie aan de geliefde Amstelkade, direct tegenover het Okura Hotel, bieden wij dit ruime appartement van circa 101 m2 aan.

De woning is gelegen in Amsterdam-Zuid, met prachtig uitzicht over de Amstel en op steenworp afstand van De Pijp en de Rivierenbuurt.

Het appartement beschikt over een royale woonkamer met aan de voorzijde uitzicht op het water, een dichte keuken, twee ruime slaapkamers, een badkamer en een separaat toilet. De ligging is ideaal: nabij diverse winkels, horeca, openbaar vervoer en uitvalswegen.

In 2025 is groot onderhoud aan het gebouw uitgevoerd, waaronder gevelwerk, schilderwerk en onderhoud aan dak en kozijnen. De buitenzijde van het complex verkeert daardoor in uitstekende staat. Daarnaast is de erfpacht eeuwigdurend afgekocht.

Wonen aan de Amstel betekent elke dag genieten van rust en ruimte, midden in de stad. De gezellige Albert Cuypmarkt, de Maasstraat en talloze horecagelegenheden bevinden zich op loopafstand. Zowel met de fiets als het openbaar vervoer ben je in enkele minuten in hartje centrum.

Parterre

Algemene open trapopgang naar de entreedeur van de woning op de eerste verdieping.

1e Verdieping

Eigen entree met tochtportaal, hal met cv-ruimte een separaat toilet en berging. Vanuit hier heeft u toegang tot alle vertrekken.

De woonkamer geniet veel lichtinval en heeft een erker aan de voorzijde met prachtig uitzicht op het Amstelkanaal. Aan de achterzijde zijn openslaande deuren naar het op het zuiden gelegen balkon.

De badkamer ligt aan de voorzijde en is uitgerust met een douche, dubbele wastafel en een aansluiting voor de wasmachine.

De keuken bevindt zich aan de achterzijde en biedt eveneens toegang tot het balkon.
Het appartement beschikt over twee slaapkamers, waarvan 1 voorzien van dubbele puien met openslaande deuren naar het balkon.

4e Verdieping

Op de vierde verdieping bevinden zich 2 zolderbergingen.

Bijzonderheden

  • Licht 3 kamer appartement 101m2;
  • Uitzicht op de Amstel;
  • Zonnig balkon (9 m2) op het zuiden;
  • Dubbele beglazing;
  • Bergingen op zolderverdieping;
  • Centrale ligging en goede bereikbaarheid;
  • Alle genoemde maten zijn circa maten;
  • Aan deze informatie kunnen geen rechten worden ontleend.

Notaris

Voor de akte van levering is een projectnotaris van toepassing.

VVE - bijdrage

De bijdrage aan de Vereniging van Eigenaren is vastgesteld op circa € 193,00 per maand.

Aanvullende informatie

Deze woning wordt aangeboden in samenwerking met Huysshop Internetmakelaar.

Overdracht
Koopprijs
€ 885.000
Beschikbaar per
09-04-2026
WOZ
€ 838.000
Woning
Kale woning
Oppervlakte en inhoud
Woonoppervlakte
101 m2
Inhoud
275 m3
Bouw
Soort woning
Appartement
Bouwjaar
1928
Energielabel
Energielabel
C
Indeling
Aantal kamers
4
Aantal slaapkamers
2
Aantal woonlagen
1
Buitenruimte
Gebouwgebonden
9 m2
Parkeergelegenheid
Soort parkeren
Betaald parkeren

Amstelkade 137 -1, 1078 AT Amsterdam op kaart