Alexiastraat 10, 6641 CV Beuningen

Te huur
Op loopafstand van het centrum  Nette keuken en badkamer  Inclusief parkeerplaats 
€1.250 per maand

Omschrijving

Op loopafstand van het centrum
Nette keuken en badkamer
Inclusief parkeerplaats

Introductie

Nabij het centrum van het Gelderse Beuningen ligt deze netjes afgewerkte tussenwoning met een complete keuken en badkamer, 3 slaapkamers, een knusse tuin met berging en een eigen parkeerplaats aan de achterzijde van de woning. De woning is goed geïsoleerd, wat resulteert in lage energiekosten.

Beuningen is een dynamisch dorp en biedt je een prachtige woonomgeving met veel groen, de dijk en de uiterwaarden. Daarnaast beschikt het dorp over een bioscoop, een actief verenigingsleven en diverse uitgaansgelegenheden. Het moderne centrum met een uitgebreid winkelaanbod en gezellige horecagelegenheden maakt het plaatje compleet!

Kenmerkend voor Beuningen is de natuurlijke omgeving van de Waal met zijn uiterwaarden en slingerende dijken. In deze sterk groeiende gemeente vind je, verspreid over de dorpen, vele sporen uit een ver verleden. De middeleeuwse torens en de eeuwenoude boerderijen herinneren aan de tijd waarin het boerenleven het karakter van de plaats bepaalde. De weelderige boomgaarden vormen een prachtig landschap voor een fietstocht wanneer ze in bloei staan. Je kunt ook zelf op ontdekkingsreis gaan in de nieuwe en ongerepte natuur, waar je heerlijk kunt wandelen.

Het openbaar vervoer naar Druten, Wijchen en Nijmegen en verbindingswegen zoals de A50 en de A73 liggen op steenworp afstand.

Kortom, Beuningen is een fijne woonomgeving voor iedereen die houdt van rust, ruimte en natuur. Luxe wonen in een prachtige omgeving, wie wil dat nou niet?

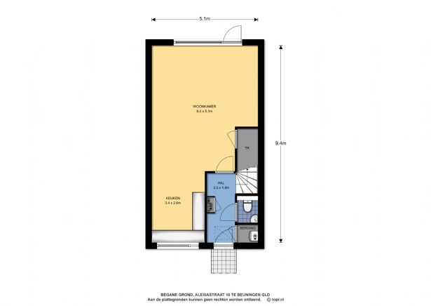
Begane grond

Je komt binnen in de entree met meterkast, toiletruimte met fonteintje en de trap naar de eerste verdieping. De tuingerichte woonkamer is royaal en sluit mooi aan op de complete keuken, die is voorzien van o.a. een koelkast, vaatwasser en een oven.

De gezellige tuin met een terras van circa 50 m2 ligt op het oosten en beschikt over een houten tuinberging. Op de warme dagen van het jaar is het hier heerlijk vertoeven. Parkeren doe je aan de achterzijde van de woning, op je eigen privéparkeerplaats (nr. 10),

1e Verdieping

Via de overloop bereik je 3 slaapkamers en een fraaie badkamer met wastafel, douche en een tweede toilet.

2e Verdieping

De ruime zolderetage is bereikbaar via een vaste trap en is geschikt voor diverse invullingen. Hier vind je tevens de aansluitingen voor het witgoed.

Bijzonderheden

  • De interieurfoto's zijn van een vergelijkbare woning;
  • Centrale en kindvriendelijke omgeving;
  • Nette keuken en badkamer;
  • Ruime tuin op het Oosten;
  • Gelegen nabij centrum;
  • Eigen parkeerplaats;
  • Goede verbindingen openbaar vervoer;
  • Alle genoemde maten zijn circa maten;
  • Aan deze informatie kunnen geen rechten worden ontleend

Voorbehoud

Bij meerdere geschikte kandidaten zal de woning via loting worden toegewezen.

Inkomensnorm

Als je in dit huis wilt wonen moet je bruto (gezamenlijk) maandinkomen minimaal €5.000,00 zijn, waarbij een eventueel 2e inkomen van je levenspartner voor de helft wordt meegerekend.

Waarborgsom

Bij de start van je huurovereenkomst betaal je een waarborgsom van minimaal één maandhuur. In sommige gevallen kan een hogere waarborgsom gevraagd worden.

Langdurige verhuur

Wij richten ons uitsluitend op langdurige verhuur. Dit betekent dat een eventuele huurovereenkomst altijd wordt afgesloten voor onbepaalde tijd met een minimale periode van drie jaar.

Huurvoorwaarden en benodigde inschrijfdocumentatie

Onze huurvoorwaarden en de benodigde inschrijfdocumenten kunt u bekijken via www.stienstra.nl/huurvoorwaarden/

Overdracht
Huurprijs
€ 1.250
Geliberaliseerd
Ja
Beschikbaar per
01-03-2026
WOZ
€ 410.000
Woning
Kale woning
Oppervlakte en inhoud
Woonoppervlakte
123 m2
Inhoud
420 m3
Bouw
Soort woning
Tussenwoning
Bouwjaar
2013
Energielabel
Energielabel
A
Indeling
Aantal kamers
4
Aantal slaapkamers
3
Aantal woonlagen
3
Buitenruimte
Tuin
Aanwezig
Ligging
Oost
Beschrijving
Achtertuin, Voortuin
Parkeergelegenheid
Soort parkeren
Op eigen terrein

Alexiastraat 10, 6641 CV Beuningen op kaart